3D Modeling & Construction Documentation - Cork and Batter

Building Information Modeling and CD Sets for Restaurant 01
Project Details
  • Project
    Type of Project 3D Modeling & Construction Documentation
  • Sector
    Building Type Restaurant
  • Area
    Area 14,500 sq. ft. (Ground, Second, and Roof)
  • Technology
    Software Revit
  • Gyroscope
    LOD 300

Cork and Batter Project – Construction Documentation

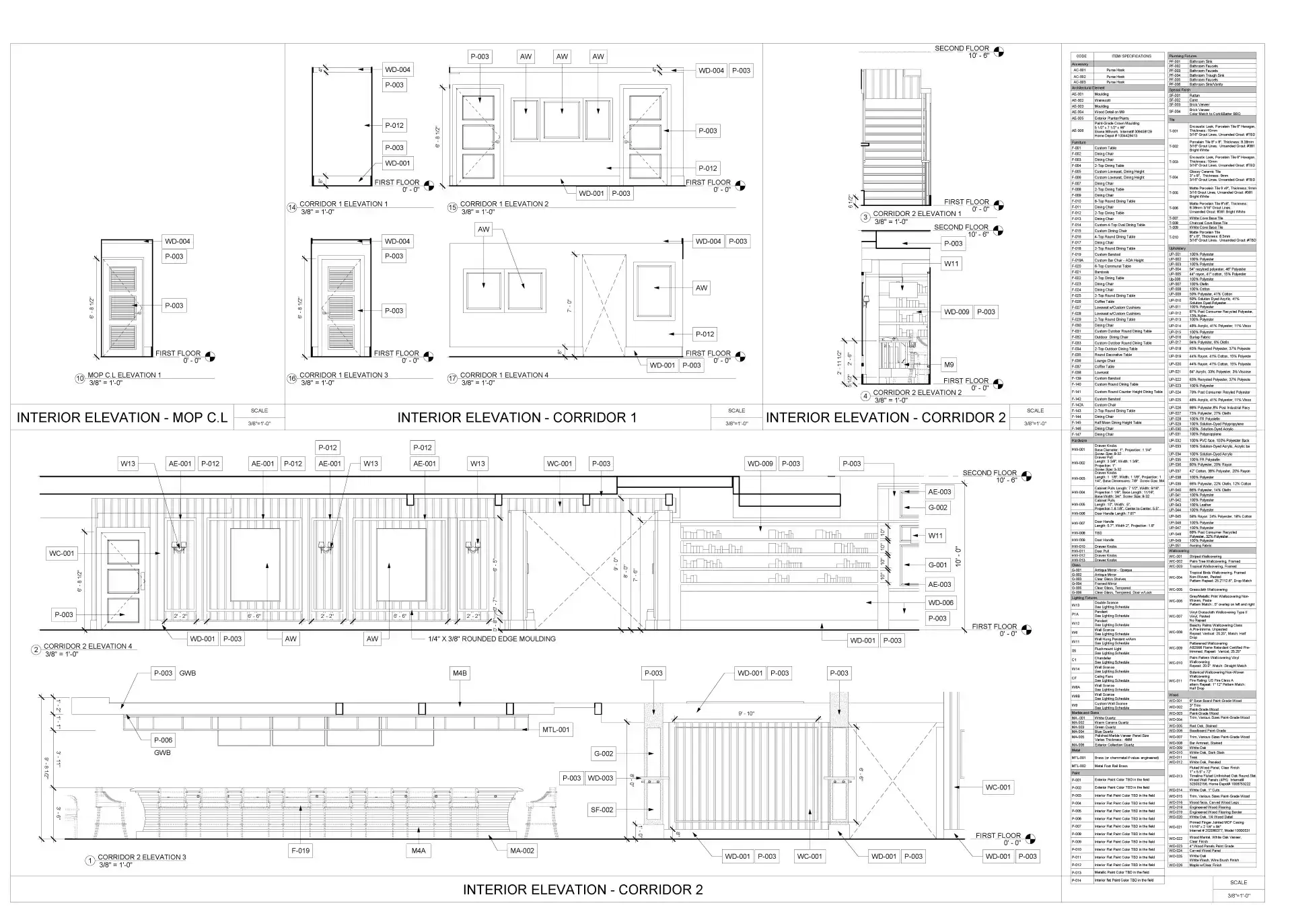
Tesla Outsourcing Services executed a comprehensive 3D modeling and construction documentation project for Cork and Batter, a restaurant in the United States. Initially focused on redesigning the restaurant’s exterior, the scope later expanded to include intricate interior modeling. Using Revit, our BIM experts meticulously developed detailed plans and elevations to reflect client specifications. The project was completed ensuring precision, flexibility, and aesthetic consistency across all design components.

Scope of Work

Developed LOD 300 models and construction documentation for a restaurant renovation project.

Phase 1: Created Revit-based exterior and interior models for an existing restaurant, incorporating client-driven design changes.

Phase 2: Translated interior designs from client’s SketchUp files into detailed Revit models.

Enhanced millwork geometry to align with client specifications.

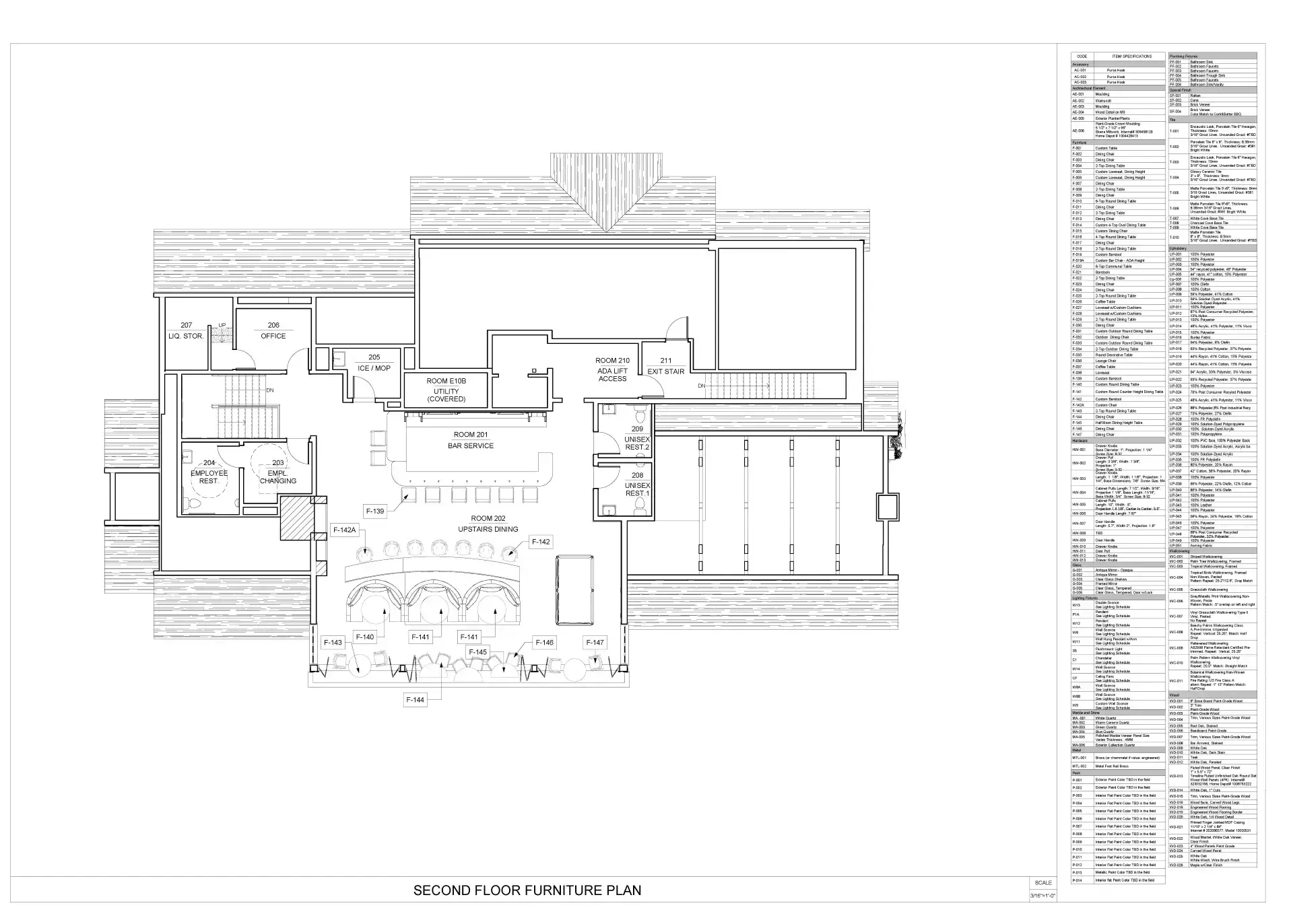
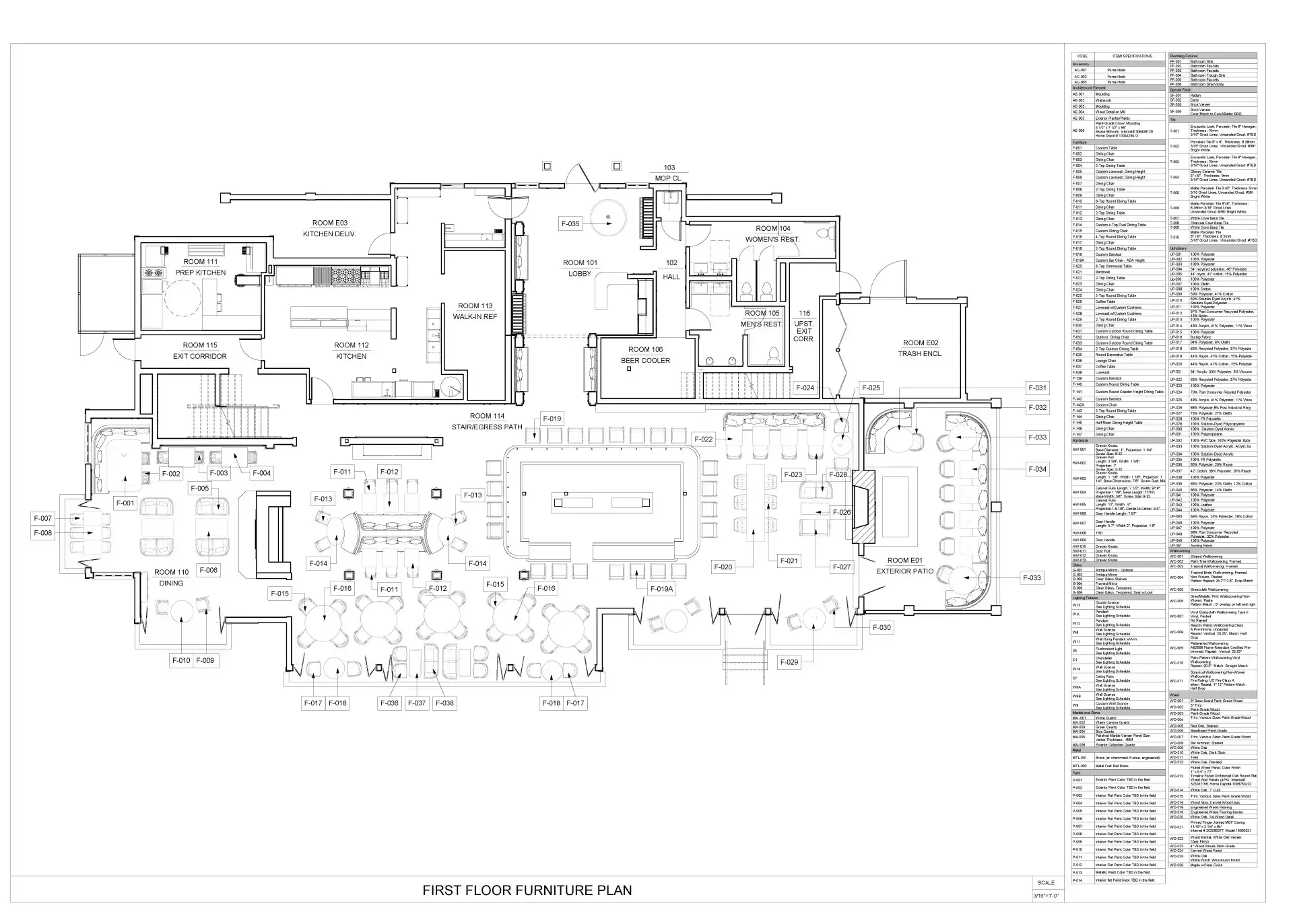
Delivered accurate interior elevations, detailed floor plans, and comprehensive documentation sets.

Ensured flexibility despite missing dimensional details by designing adaptable Revit families for multiple spatial conditions.

Project Deliverables

3D Revit Model (LOD 300)
Construction Documentation Set
Floor Plans with Material Tags and Legends
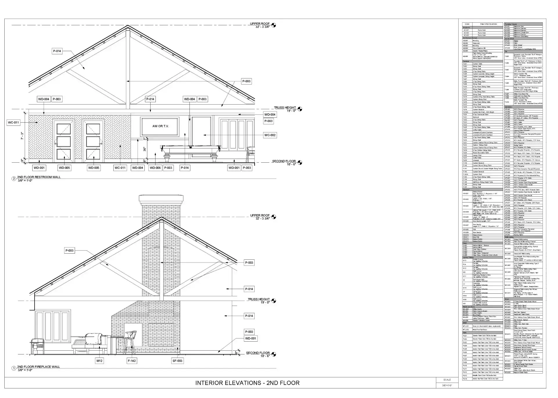
Detailed Interior Elevations
Enlarged Lobby Drawings
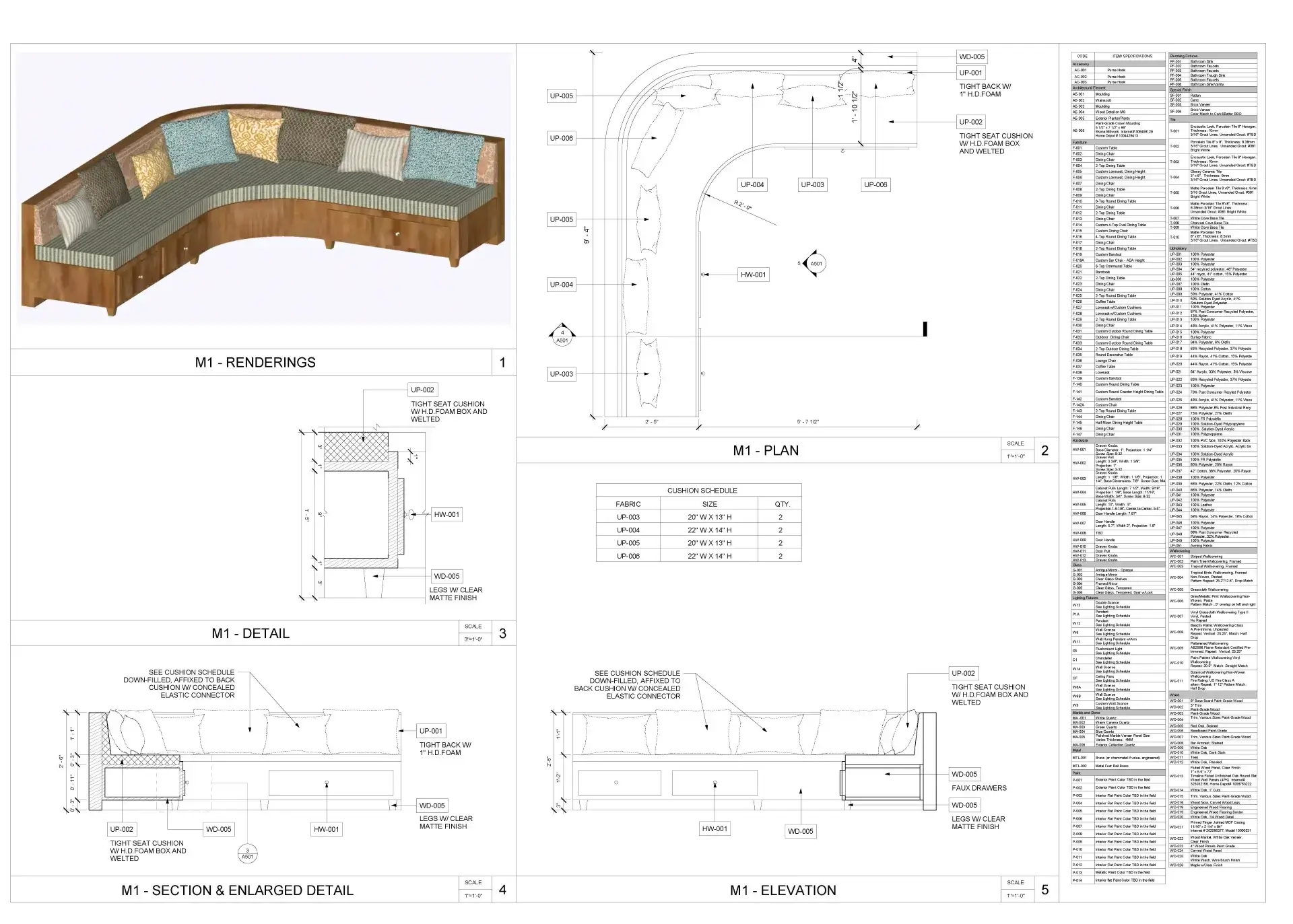
Bar and Banquette Detailing
Section and Elevation Sheets

Model Contents

  • All interior elevations, including restrooms and exterior patio views, created in Revit.
  • Included baseboards, wall finishes, chair rails, millwork detailing, and vertical dimensions.
  • Floor Plans: Separate layouts for furniture, finish materials, and millwork.
  • Furniture referenced from AutoCAD files with tagging provided by the client.
  • Finish Floor Plans included legends, hatches, and dimensions for clarity.
  • Banquette Plans, Sections, and Elevations developed as standalone sheets for each unit.
  • Bar Areas (both bars) modelled in Revit with sections, elevations, and detailed tagging.
  • Enlarged Lobby Drawings included built-in benches, wine bar, and hostess stand.
  • Ensured accuracy and adaptability in the absence of complete dimensional data.

Our Latest Blogs