10,000+ Projects

BIM Services Texas

Tesla Outsourcing Services delivers comprehensive BIM (Building Information Modeling) Services across Texas, empowering architects, engineers, contractors, and building owners to achieve smarter, more collaborative, and cost-effective project outcomes. With deep expertise in the AEC (Architecture, Engineering, and Construction) industry, we support projects from concept through construction and facility management, ensuring precision, efficiency, and innovation at every stage.

BIM Verticals Arrow Contact Us Arrow
John Hancock Tower - Boston
John Hancock Tower - Boston
17 YEARS
Reunion Tower - Dallas
Texas AEC

The AEC Landscape in Texas

Texas is cementing its position as a construction powerhouse in 2025, driven by a massive boom in the technology and energy sectors. The state is at the forefront of the global data center expansion, alongside continued investment in transportation infrastructure and advanced manufacturing facilities like Samsung's semiconductor plant. This explosive growth in highly technical projects creates an urgent need for precision and efficiency. Building Information Modeling (BIM) is indispensable for coordinating these complex undertakings, managing intricate MEP systems, and optimizing project timelines. For firms building the future of Texas, BIM provides the digital foundation for delivering these large-scale, mission-critical facilities successfully.

BIM Verticals

Our BIM Service Offerings in Texas

BIM Modeling

BIM Modeling (LOD 100-500)

BIM Modeling (LOD 100–500)

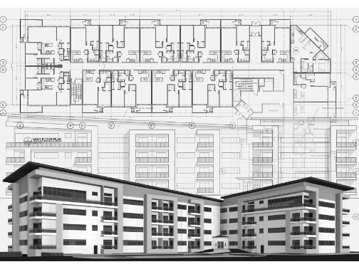
We create accurate 3D BIM models at every Level of Development (LOD), tailored for architectural, structural, and MEP (Mechanical, Electrical, Plumbing) disciplines. Our models support design visualization, construction documentation, and detailed coordination, reducing errors and rework throughout the project lifecycle.

BIM Coordination

BIM Coordination & Clash Detection

BIM Coordination & Clash Detection

Our BIM coordination services resolve conflicts between trades—architectural, structural, and MEP—using advanced clash detection tools. By identifying and addressing issues early, we help minimize costly change orders and keep projects on schedule.

BIM Consulting Services

BIM Consulting Services

BIM Consulting Services

We provide expert BIM consulting for Texas projects, offering guidance on implementation, workflow optimization, and BIM Execution Plans (BEP). Our team delivers strategic advice, training, and support to help you maximize BIM technology in line with industry standards and Texas-specific requirements.

Scan to BIM

Scan to BIM

Scan to BIM

We convert point cloud data from laser scans into precise as-built BIM models, ideal for renovations, retrofits, and facility management. Our Scan to BIM services deliver LOD 500 models that accurately represent existing conditions.

Revit Family Creation

Revit Family Creation

Revit Family Creation

Tesla Outsourcing Services develops custom, parametric Revit families for manufacturers, architects, and engineers. Our families are optimized for performance, accuracy, and interoperability within your BIM environment.

Construction Documentation

Construction Documentation

Construction Documentation

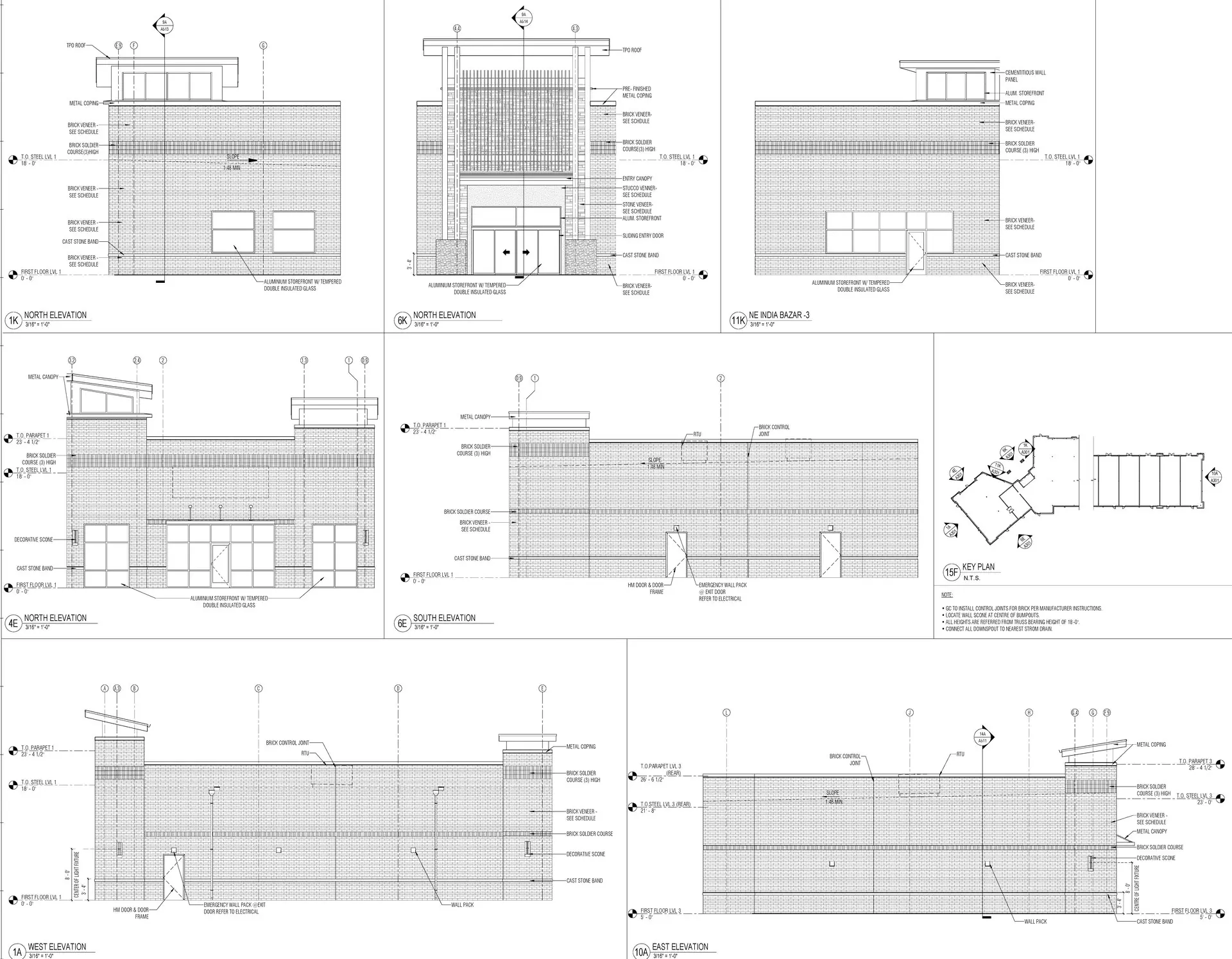
We produce detailed construction documents and shop drawings directly from BIM models, ensuring seamless transition from design to construction and supporting fabrication workflows.

Diverse Portfolio

Our Portfolio

Real Results, Real Projects
Government Building
Commercial Building
Religious Building
Hotel Building
Commercial Building
Educational Building
Years of Experience

0 +

Years of Experience

Successful Projects

0 +

Successful Projects

Countries Served

0 +

Countries Served

Happy Clients

0 +

Happy Clients

Softwares

Software Proficiency

Unmatched Services

Why Choose Tesla Outsourcing Services for BIM in Texas?

  1. Proven Expertise: Our team brings years of experience delivering BIM Services in Texas for projects of all sizes and complexities.
  2. Quality & Accuracy: We adhere to industry standards and best practices, ensuring high-quality deliverables that meet client expectations.
  3. Collaborative Approach: We work closely with clients, consultants, and contractors, facilitating transparent communication and smooth project workflows.
  4. Dedicated Resource Arrangement: Need to scale your team quickly? We offer flexible dedicated resource arrangement for AEC , allowing you to hire dedicated BIM modelers and specialists who work as an extension of your in-house team. This ensures you have the right expertise and resources at every stage of your project.
BIM For Everyone

Serving Texas's Diverse Sectors

We support projects across commercial, residential, healthcare, education, infrastructure, andindustrial sectors, always prioritizing quality, compliance, and client satisfaction.

Architectural and design firms
Architectural and
Design Firms
MEP engineering
MEP Engineering
Consultants
General contractors
General Contractors and
Construction Managers
property owners
Developers and
Property Owners
Facility managers
Facility
Managers
Get in Touch

We deliver reliable BIM services including precise modeling, clash detection, and project coordination for construction needs in Texas.

Precision BIM for Texas builds...

— Precision BIM & drafting for the global AEC industry.

NDA Protected

Strict adherence to NDA protocols.

100% Confidential

We guarantee confidentiality of your data.

24-Hour Response

You'll hear back from our team within one business day.

Contact Us

Our Latest Blogs