10,000+ Projects

BIM Services Boston

Are you searching for a reliable BIM Services Company in Boston to streamline your construction process and deliver superior results? At Tesla Outsourcing Services , we put your needs first—offering comprehensive Building Information Modeling (BIM) solutions that help you minimize risks, enhance collaboration, and achieve exceptional project outcomes in Boston's dynamic architecture, engineering, and construction environment.

BIM Verticals Arrow Contact Us Arrow
John Hancock Tower - Boston
John Hancock Tower - Boston
17 YEARS
John Hancock Tower - Boston

The AEC Landscape in Boston

Boston's AEC industry is thriving in 2025, solidifying its status as a global hub for innovation and development. The city is hosting several premier industry events, including the AIA Conference on Architecture & Design, attracting top AEC professionals worldwide. This dynamism is reflected in its robust construction pipeline, driven by the life sciences sector and landmark projects like the South Station Tower and Harvard's Enterprise Research Campus. For firms navigating this competitive market, integrating advanced BIM services is no longer optional. It is essential for managing the complexity of mixed-use developments, achieving sustainability goals, and ensuring seamless collaboration on the groundbreaking projects shaping Boston's skyline.

BIM Verticals

Key BIM Services Offered in Boston

BIM Modeling

BIM Modeling (LOD 100-500)

BIM Modeling (LOD 100–500)

We create accurate 3D BIM models at every Level of Development (LOD), tailored for architectural, structural, and MEP (Mechanical, Electrical, Plumbing) disciplines. Our models support design visualization, construction documentation, and detailed coordination, reducing errors and rework throughout the project lifecycle.

BIM Coordination

BIM Coordination & Clash Detection

BIM Coordination & Clash Detection

Our BIM coordination services resolve conflicts between trades—architectural, structural, and MEP—using advanced clash detection tools. By identifying and addressing issues early, we help minimize costly change orders and keep projects on schedule.

BIM Consulting Services

BIM Consulting Services

BIM Consulting Services

We provide expert BIM consulting for Texas projects, offering guidance on implementation, workflow optimization, and BIM Execution Plans (BEP). Our team delivers strategic advice, training, and support to help you maximize BIM technology in line with industry standards and Texas-specific requirements.

Scan to BIM

Scan to BIM

Scan to BIM

We convert point cloud data from laser scans into precise as-built BIM models, ideal for renovations, retrofits, and facility management. Our Scan to BIM services deliver LOD 500 models that accurately represent existing conditions.

Revit Family Creation

Revit Family Creation

Revit Family Creation

Tesla Outsourcing Services develops custom, parametric Revit families for manufacturers, architects, and engineers. Our families are optimized for performance, accuracy, and interoperability within your BIM environment.

Construction Documentation

Construction Documentation

Construction Documentation

We produce detailed construction documents and shop drawings directly from BIM models, ensuring seamless transition from design to construction and supporting fabrication workflows.

Dedicated Resources

Hire a Dedicated BIM Modeler for Your Boston Project

Take full control of your project's BIM requirements by hiring a dedicated BIM modeler from Tesla Outsourcing Services. This flexible, client-focused arrangement allows you to accessskilled BIM professionals who work exclusively on your project—ensuring consistency, deep project understanding, and seamless integration with your team. You benefit from directcommunication, faster turnaround, and the ability to scale resources up or down as your projectevolves.

Hire Dedicated BIM Modeler Arrow
Coordianted and Clash Free BIM Model
Diverse Portfolio

Our Portfolio

Real Results, Real Projects
Government Building
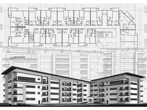
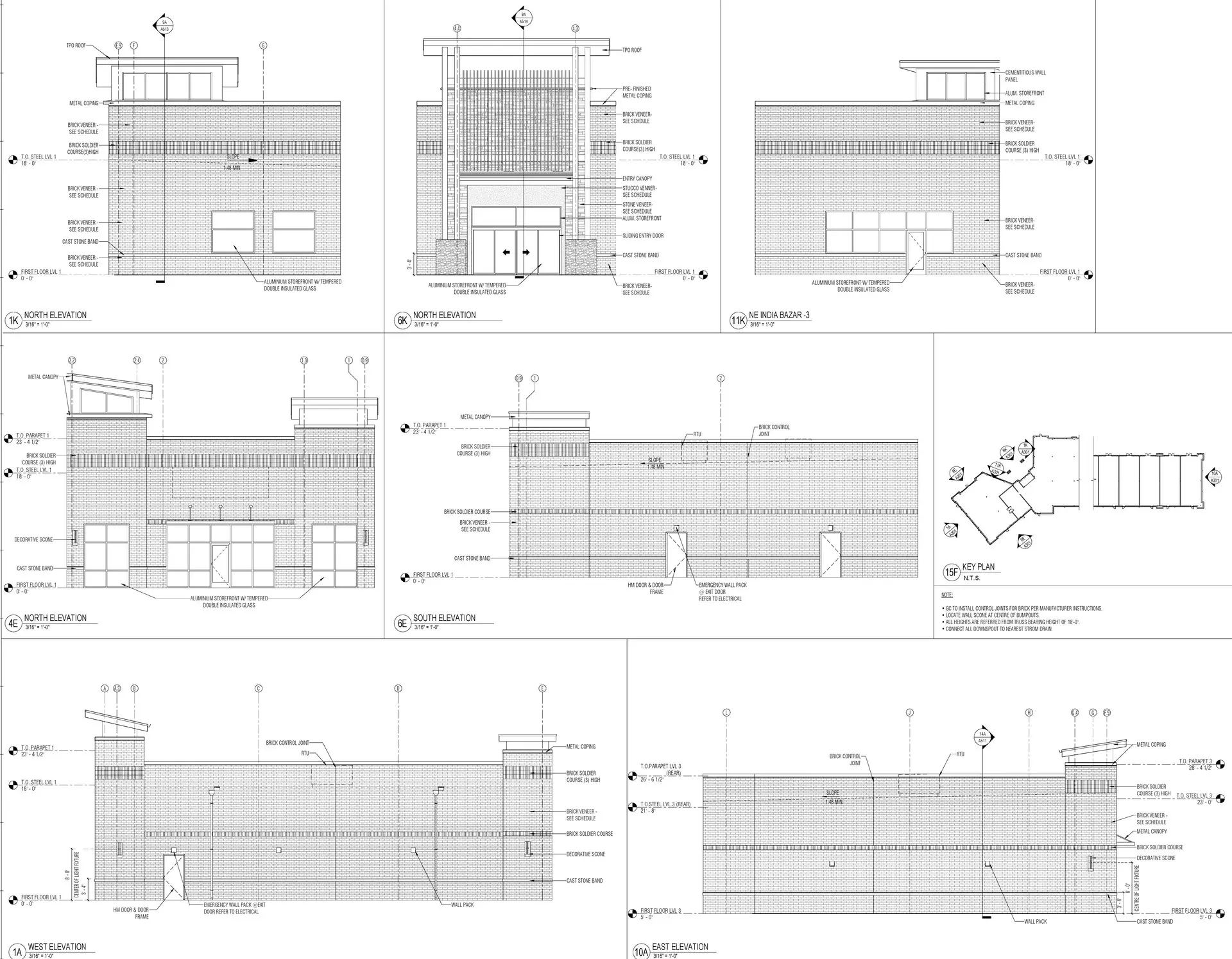
Commercial Building
Religious Building
Hotel Building
Commercial Building
Educational Building
Softwares

Software Proficiency

Years of Experience

0 +

Years of Experience

Successful Projects

0 +

Successful Projects

Countries Served

0 +

Countries Served

Happy Clients

0 +

Happy Clients

BIM For Everyone

Serving Boston's Diverse Sectors

We support projects across commercial, residential, healthcare, education, infrastructure, andindustrial sectors, always prioritizing quality, compliance, and client satisfaction.

Architectural and design firms
Architectural and
Design Firms
MEP engineering
MEP Engineering
Consultants
General contractors
General Contractors and
Construction Managers
property owners
Developers and
Property Owners
Facility managers
Facility
Managers
Get in Touch

We provide top-tier 3D modeling, drafting, and project coordination to streamline construction workflows in Boston.

Top-tier BIM for Boston projects...

— Precision BIM & drafting for the global AEC industry.

NDA Protected

Strict adherence to NDA protocols.

100% Confidential

We guarantee confidentiality of your data.

24-Hour Response

You'll hear back from our team within one business day.

Contact Us

Our Latest Blogs