CD Sets and 3D Rendering for AVID Candlewood Hotel

3D Rendering of Hotel Building or Construction Drawings – CD Sets 01
Project Details
  • Project Img
    Project Name: Avid And Candlewood by IHG
  • Project Type
    Project Type: Construction Documentation and 3D Rendering
  • Placeholder
    Location: 350 Harding place, Nashville, Davidson CO, TN
  • Sector image
    Type of Building: Hotel
  • Floor image
    Floors: 4 Story
  • Area image
    Area of the building: 90256 Sq. Ft.

Project Objective and Summary

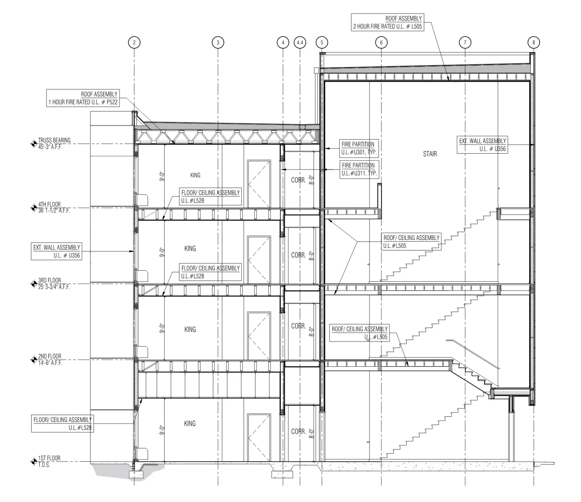
The objective of this project was to develop a comprehensive set of construction drawings and equipment schedules for a multi-story hotel building, ensuring full compliance with Tennessee's architectural standards and building codes.

The project was outsourced to Tesla Outsourcing Services by an architectural firm based in Tennessee, USA. A dedicated team of two experienced architects was assigned exclusively to this project for approximately 2–3 months. Working in close coordination with the U.S. counterpart, the team meticulously followed American architectural practices and standards. The project was successfully delivered within schedule, leading to continued collaboration on subsequent hotel documentation assignments.

Project Description

Project Scope

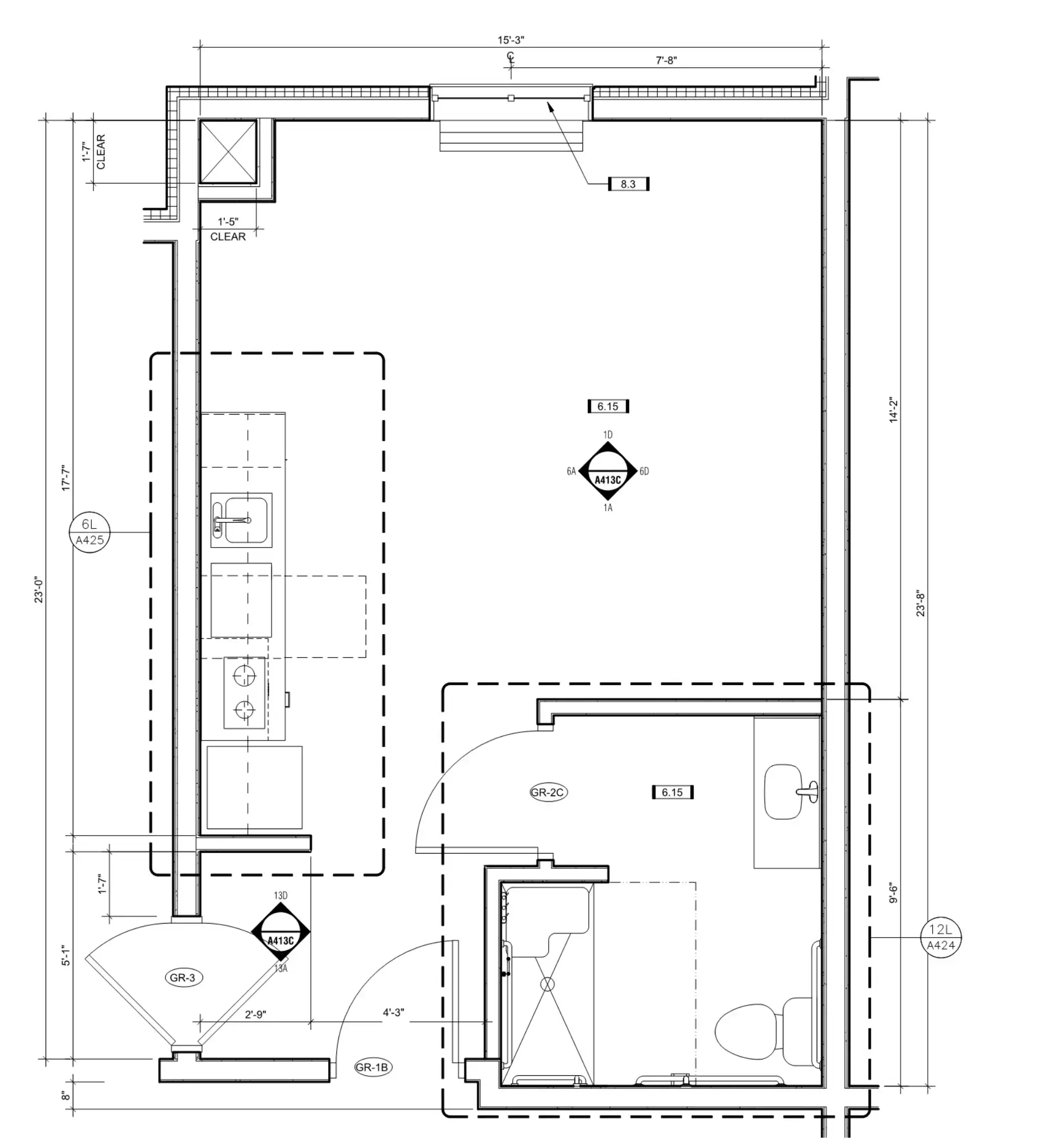
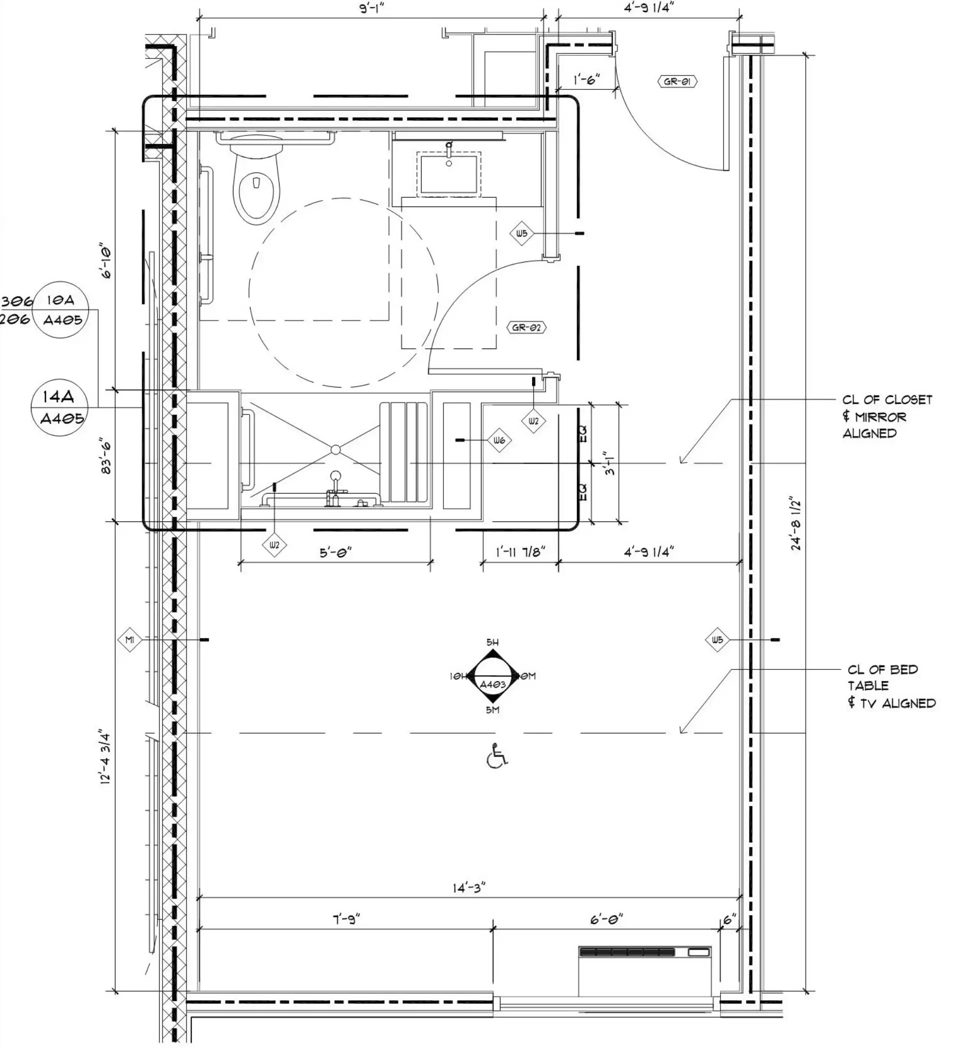
The project involved the development of construction drawings for a four-story hotel suite, integrating prototypes from two hospitality brands — Avid and Candlewood. The only inputs provided were basic prototype floor plans and elevations. The architectural team expanded these into fully detailed construction drawings, ensuring accuracy, coordination, and constructability throughout the documentation process.

Building Data

  • Building Height: 59'-6"
  • Number of Stories: 4
  • Type of Construction: Wood Frame Construction
  • Sprinkled Building: Yes
  • Construction Type: VA-Protected Wood Frame

Building Area

  • First: 24,128 sq. ft.
  • Second: 24,128 sq. ft.
  • Third: 24,128 sq. ft.
  • Fourth: 24,128 sq. ft.
  • Total: 90,256 sq. ft.

Unit Breakdown – Avid

Room Type 1 ST 2 ND 3 RD 4 TH Total
GR – K 3 6 6 6 21
GR-K – ADA - 1 1 1 3
GR – Q 2 12 13 13 40
GR – Q – ADA 1(R.I.S.) - - - 1
TOTAL 6 19 20 20 65

Unit Breakdown – Candlewood

Room Type 1 ST 2 ND 3 RD 4 TH Total
STUDIO – KING 15 19 19 19 72
STUDIO – KING – ADA 1(R.I.S.) 1 2 - 2
STUDIO – QQ 3 4 6 6 16
STUDIO – QQ – ADA 2 2 2 - 6
1 BEDROOM SUITE 1 2 2 2 7
1 BEDROOM SUITE – ADA 1 - - - 1
TOTAL - - - - 104

Project Deliverables

The Construction Drawings of the Project included

  • Site Plan
  • Life Safety
  • Floor Plans-First Floor to Fourth Floor
  • Reflected Ceiling Plan
  • Room Matrix
  • Enlarged Floor Plans
  • Guest Room Plans
  • Exterior Elevations
  • Interior Room Elevations
  • Sections
  • Detailing of All Rooms
  • Construction Details

Also, we co-ordinate our Construction Drawings with Mechanical, Electrical, Plumbing and Structural Agencies.

Conclusion

Delivered high-quality, technically accurate construction drawings and 3D renderings within the stipulated timeline, despite limited initial inputs. Our consistent performance and adherence to U.S. architectural standards have enabled us to handle multiple outsourced projects ranging from conceptual design through complete construction documentation, including both exterior and interior renderings.

Years of Experience

0 +

Years of Experience

Successful Projects

0 +

Successful Projects

Countries Served

0 +

Countries Served

Happy Clients

0 +

Happy Clients

Our Latest Blogs