La Quinta Jackson

Tesla Outsourcing Services was tasked with developing a complete set of Construction Drawings with equipment schedules for the hotel La Quinta in Jackson, Tennessee. The project required adherence to architectural standards and building codes specific to Tennessee, United States.

Jackson 1

Building Structure

Hotel

Services

Construction Drawings

Download Case Study

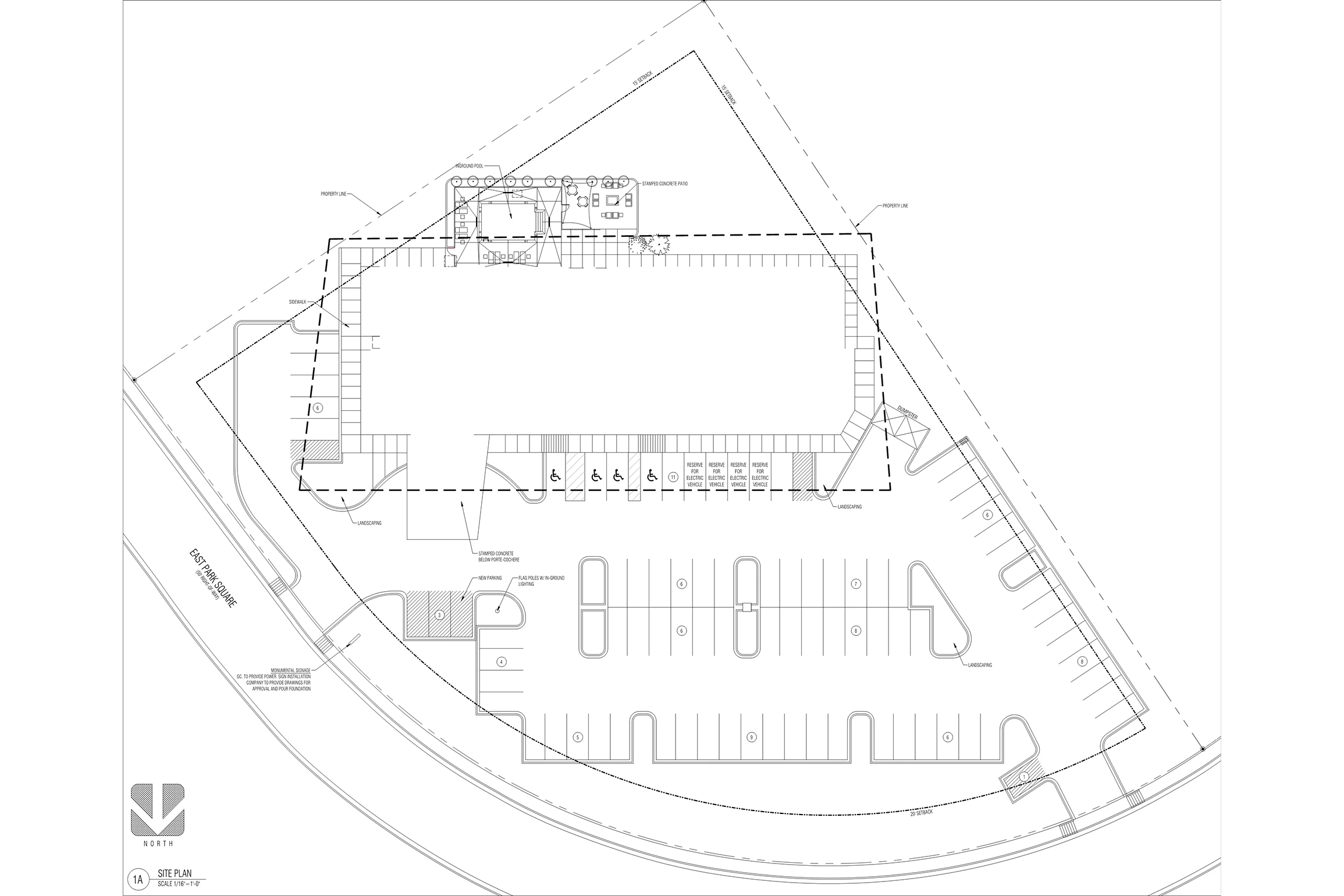
Background

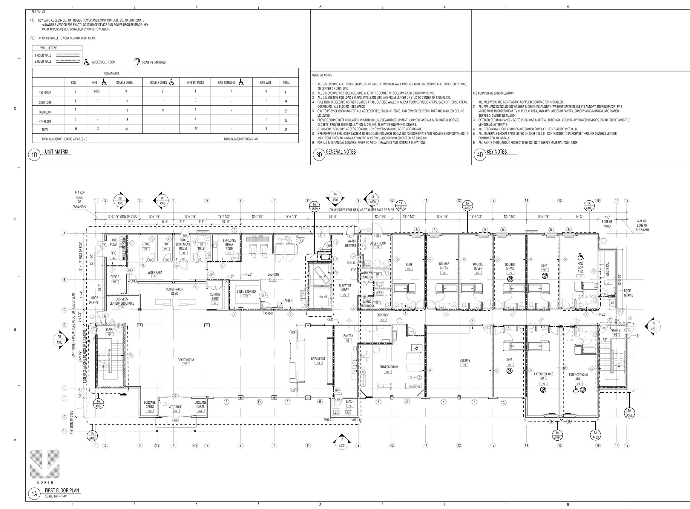
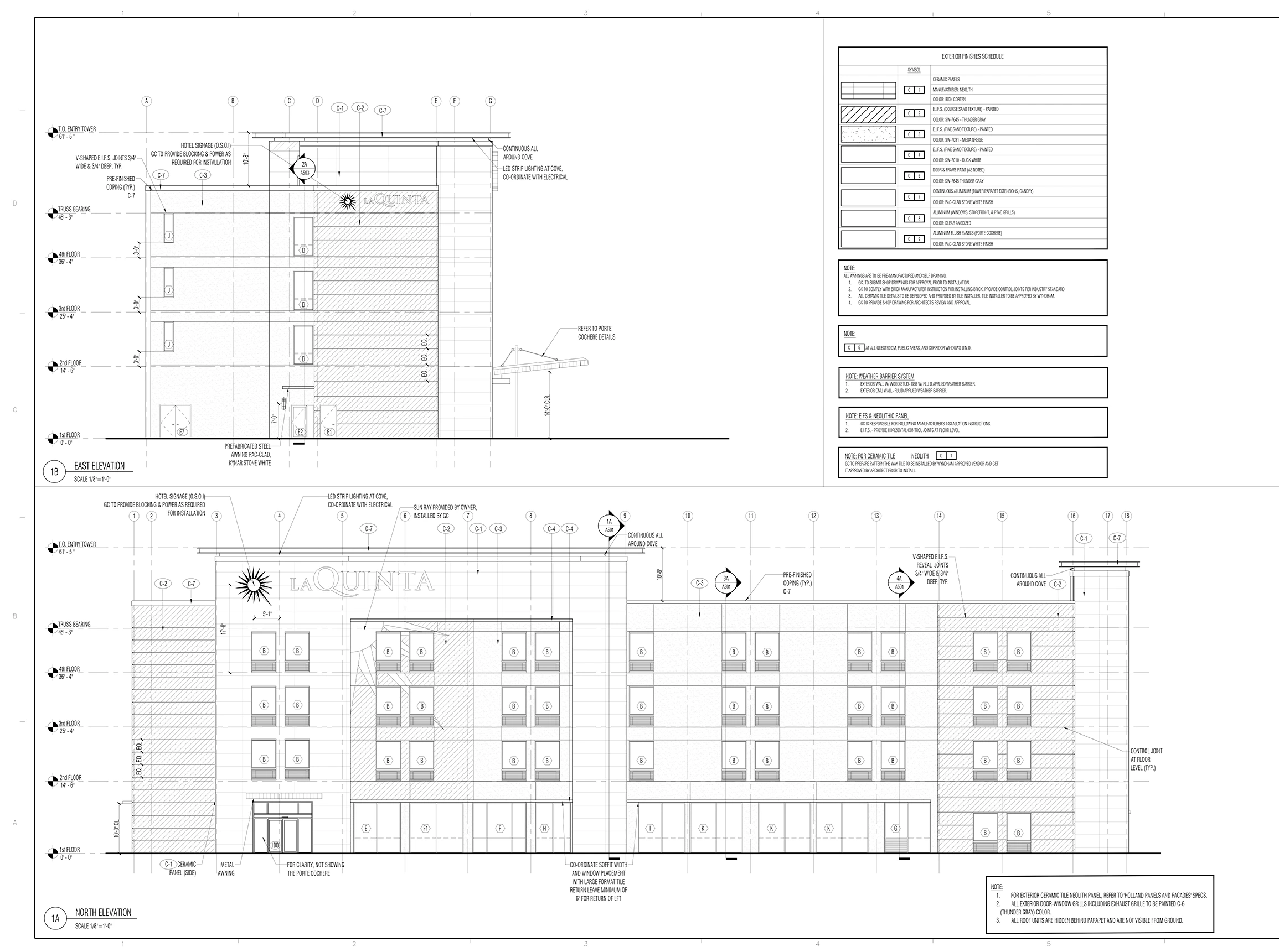
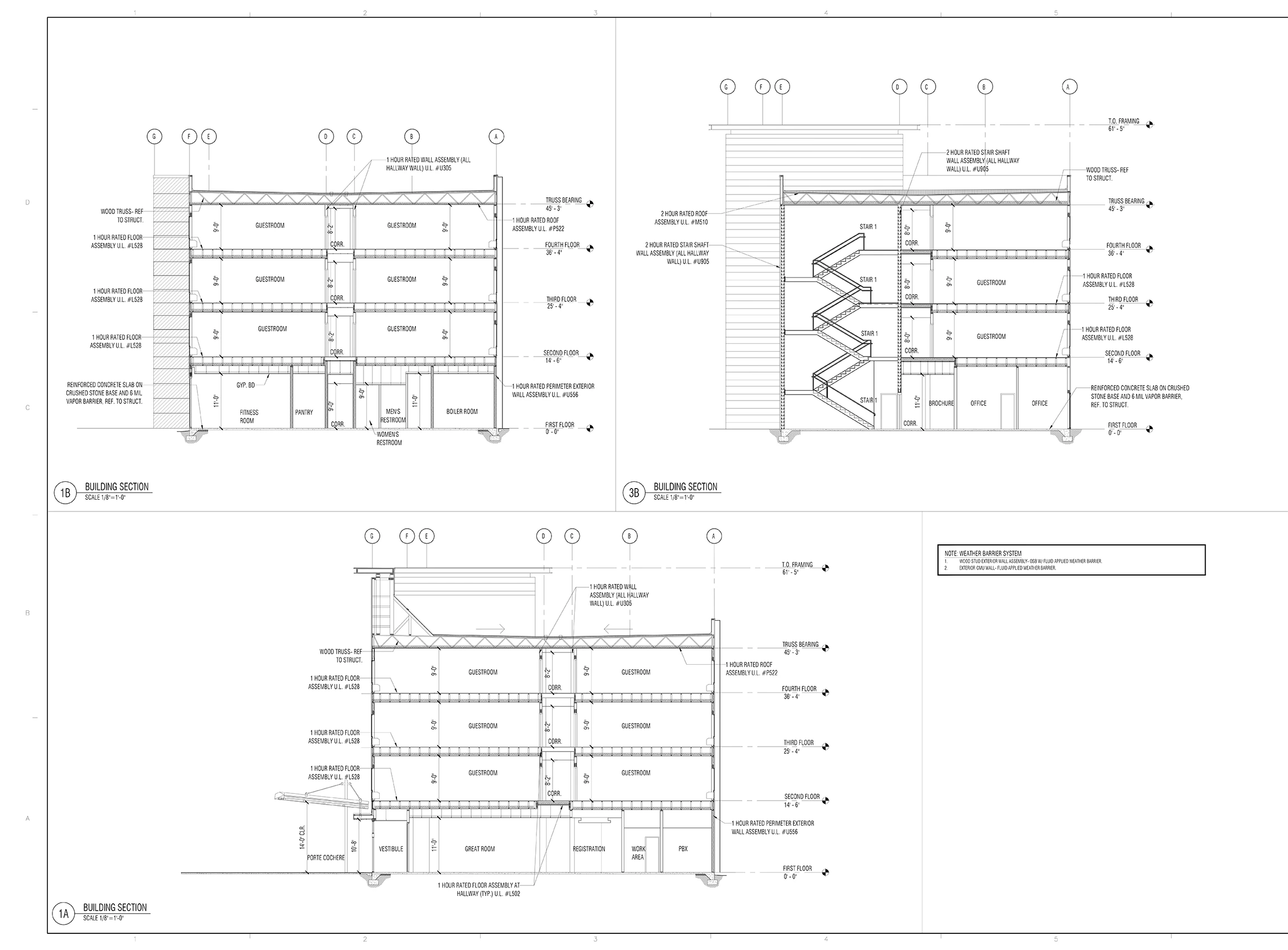
The La Quinta Hotel is a four story Hotel situated in Jackson, Tennessee that required renovation. The hotelier did not want any changes in the outer structure while they planned many changes in the interior along with addition of few facilities that must be included in the Construction Drawings with equipment schedules. The Tesla Team received Revit Drawings, a basic prototype and elevation from that the client. The Revit drawing required to be converted into AutoCAD files to begin the job.

Scope of Services

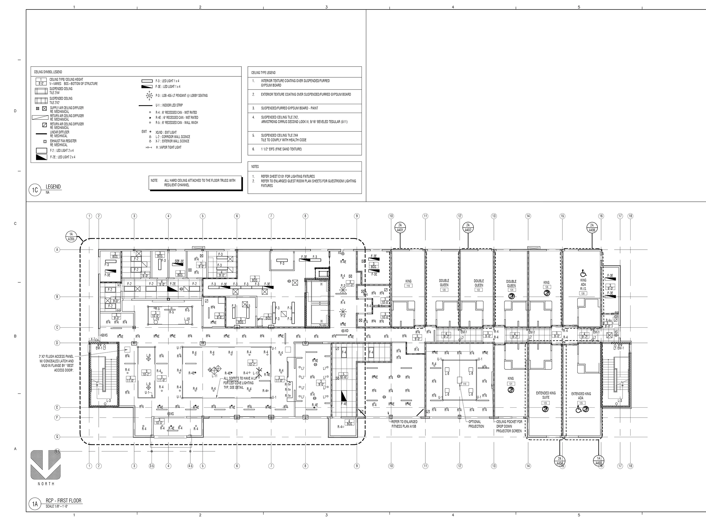
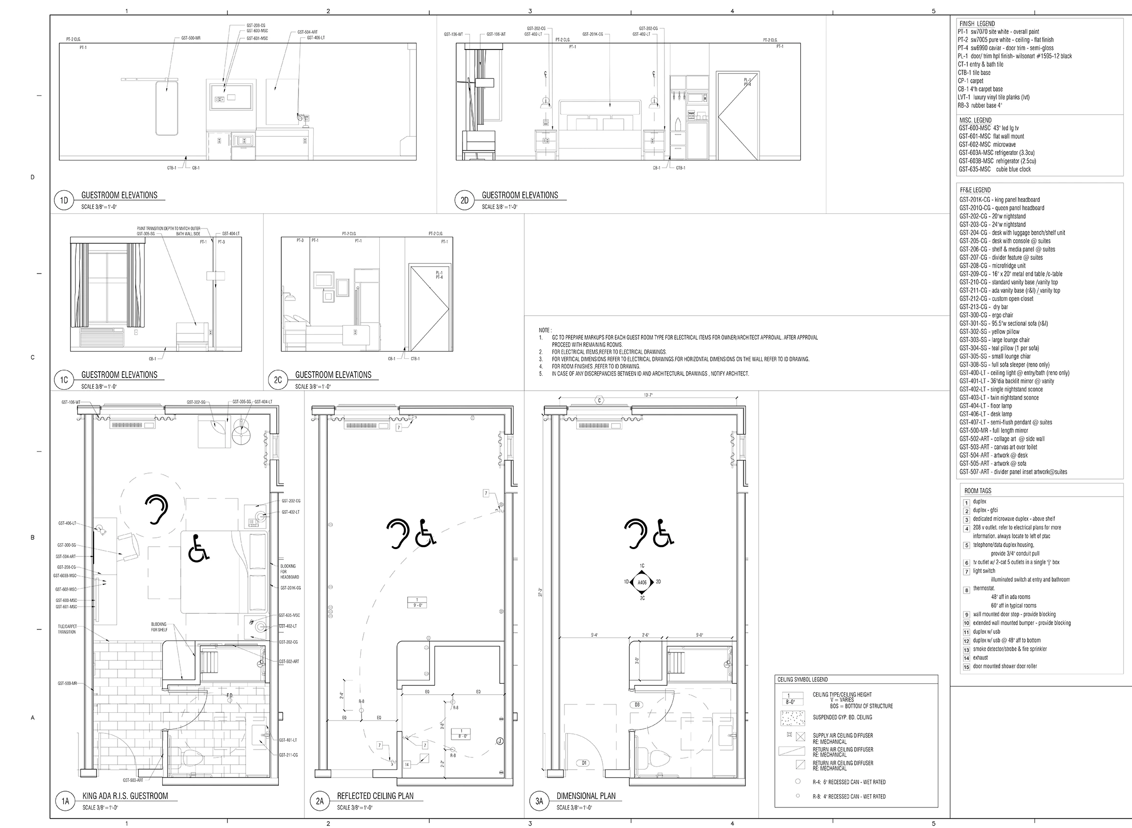
The team was to develop details relevant to construction drawings from the conceptual design, include new facilities in the old structure without demolishing a lot of walls. Acoustics in the corridors, in rooms and the browsing space in the ADA rooms were to be considered carefully as per the specification provided by the client.

The inclusion of Life Safety, fire safety were to be considered and drawn separately as per the US Safety Standards.

The final significant aspect of the project was obtaining client approval for all drawings at each stage, and later, securing the court's* approval for the final compiled construction drawings. (The court* is a term used for the regulatory authority in the US that checks the construction drawings and approves only if they are as per the standards defined by the city as well as by state.)

The 2018 International Building Code was to be followed for La Quinta Hotel

Contact Us
La QuintaJackson Sample Image

Project Execution

Tesla allocated 2 architects to work exclusively on this project to ensure quality and deliver the final project as per the schedule.

Project Specifications

The whole project was divided into 4 stages. After receiving the prototype from the client, the work at Tesla begins. The deliverable at every stage has to be submitted to the client for approvals. Once the approvals are received, the project then advances to the next stage.

Floor

Gross Area

First

12,056 SF

Second

12,148 SF

Third

12,148 SF

Fourth

12,148 SF

Total

48,500 SF

unit breakdown

Room Type I II III Iv Total
King 3 9 9 8 29
King A.D.A 1-RIS 1 1 0 3
Double Qeen 3 11 11 13 38
Double Qeen ADA 0 1 0 0 1
King Extended 1 3 4 4 12
King Extended 1 0 0 0 1
King Wide 0 1 1 1 3

Compliance

Tesla Outsourcing Services ensured high-quality standards by adhering to industry benchmarks such as AIA guidelines and Tennessee Building Codes. Rigorous assurance measures were implemented to guarantee compliance and precision in all construction drawings.

The codes that were adhered to for La Quinta Hotel are mentioned in the following table.

Code Information for La Quinta Hotel, Jackson, TN
Building Code 2018 International Building Code
Plumbing Code 2018 International Plumbing Code
Mechanical Code 2018 International Mechanical Code
Electrical Code 2017 National Electrical Code
Fire/Safety Code
2018 International Fire Code
2018 NFPA 72 Life Safety Code with Revisions
Accessibility Code 2017 ADA Standards for Accessible Design Department of Justice
Energy Code 2012 International Energy Conversation Code
Gas Code 2018 Fuel Gas Code
Sign Code Wyndham Standards
Parking Spaces Assumed Parking 1.0 Spaces per Guestroom

Client Feedback

Quote Icon

"I was feeling pretty swamped at first, but Tesla Outsourcing Services totally made this huge task a breeze and got it done on time, too!" said the client at the end of La Quinta Hotel Project. He has since been a regular client of Tesla Outsourcing Services and had collaborated for more than 15 other projects."

-N Kumar

Years of Experience

0 +

Years of Experience

Successful Projects

0 +

Successful Projects

Countries Served

0 +

Countries Served

Happy Clients

0 +

Happy Clients

Our Latest Blogs