Revit Construction Drawings for India Bazar

Project Details
  • project img
    Project Name India Bazaar
  • Placeholder
    Location Collin County, Texas, USA
  • Project Type
    Project Type Revit Construction Drawing Set with Rendered Model
  • Sector image
    Type of Building Commercial
  • Technology image
    Software Revit
  • Gyroscope image
    LOD 300
  • Clock image
    Turnaround time 1+ year

Revit Modeling, Construction Documentation and Rendering of the Commercial Building

This project presented unique challenges, making its successful execution a testament to our team's expertise and perseverance.

Our deep knowledge of local building codes and proactive liaisoning with local government bodies were crucial in navigating the following demanding aspects:

  • Complex Floor Levels: Navigating and coordinating different floor levels within the building's design.
  • Rigorous City Code Compliance: Adhering strictly to city codes for material calculations, which necessitated significant revisions to the floor plan, elevations, and rendered views.
  • Challenging Site Plan Approval: Securing site plan approval from the city amidst numerous restrictions.

Despite these hurdles, our team delivered a comprehensive construction set with a rendered model in LOD 300, achieving PSP Approval after over a year of dedicated effort. This project truly showcases our ability to overcome significant obstacles and deliver exceptional results.

Model Contents

  • Our team meticulously modeled the entire India Bazaar group complex, encompassing the hotel, retail spaces, restaurants, and the India Bazaar itself. We leveraged 3ds Max for the core modeling and Corona Renderer to achieve stunning visual fidelity.

  • Every minute detail was created using Edit Poly and Spline commands. To further enhance the realism and dynamism of the building, we incorporated comprehensive landscaping, diverse objects, and human elements.

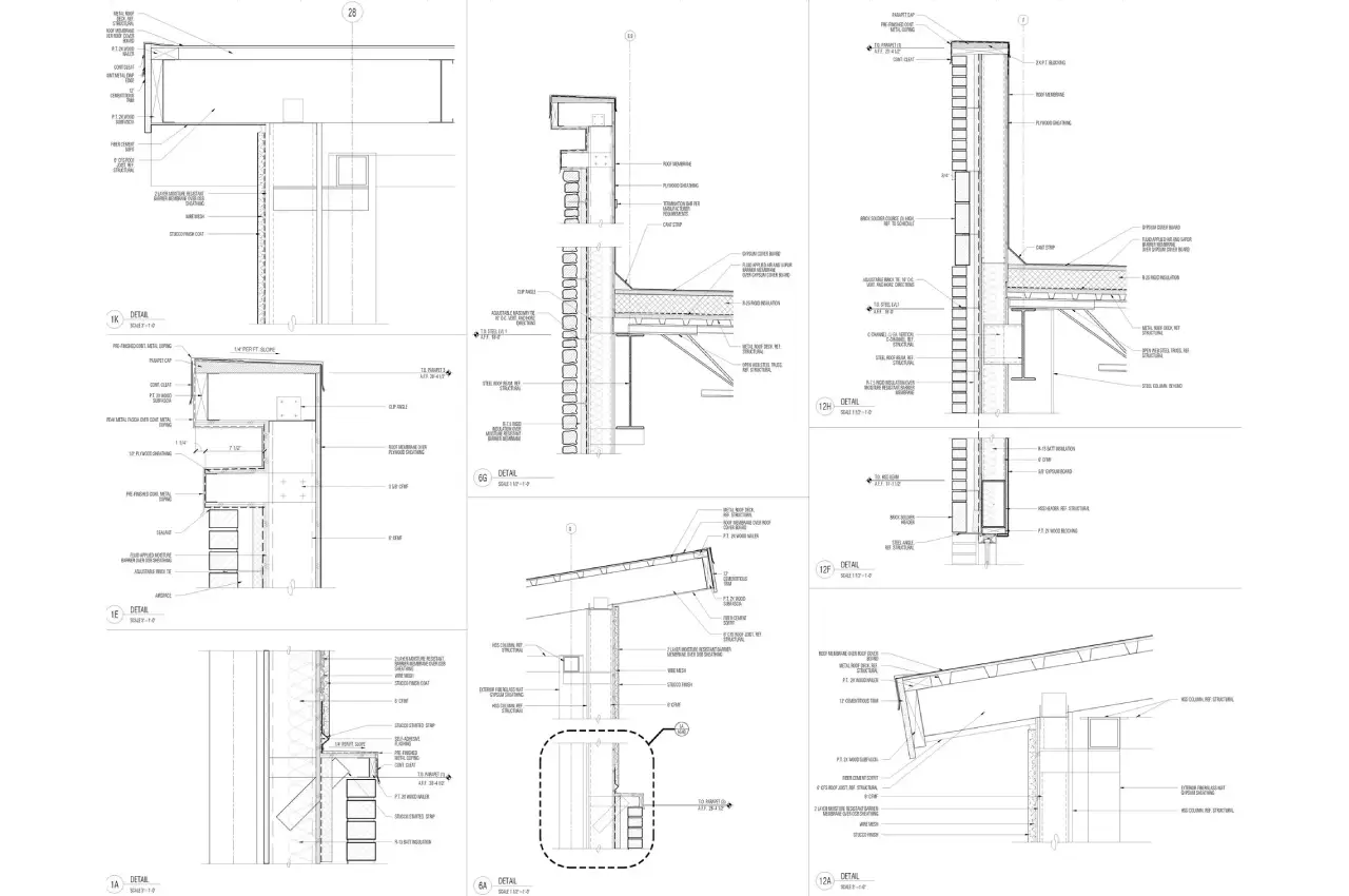
  • For the construction set, we used Revit to tackle complex design forms by utilizing stacked walls, generic models, and custom family creations. Revit's drafting tools were indispensable for generating precise details for both sections and wall sections, ensuring accuracy throughout.

Years of Experience

0 +

Years of Experience

Successful Projects

0 +

Successful Projects

Countries Served

0 +

Countries Served

Happy Clients

0 +

Happy Clients

Our Latest Blogs