3D Modeling and Shop Drawings for Roof Waterproofing Treatment

Project Details

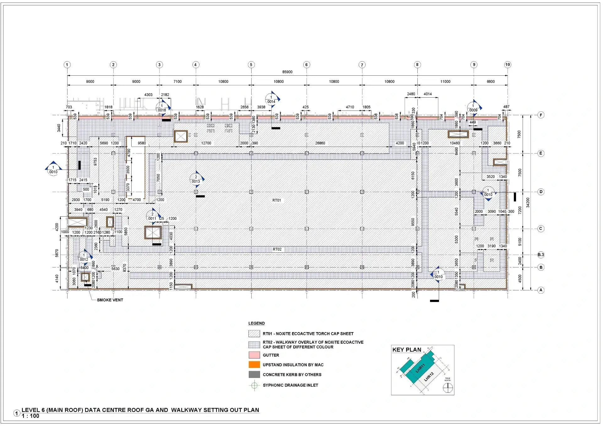
Tesla Outsourcing Services completed a shop drawing and 3D modeling project focused on roof waterproofing treatments for a mixed-use generator building in the UK. Using BIM 360, the team developed accurate roof build-ups from technical submittals, coordinated with other consultants, and transitioned drawings from the construction stage to as-built. The 3D collaborative model incorporated detailed waterproofing layers, including primers, reinforcement fleece, and ballast, pavers, pedestals, and pitch pockets. The entire scope, ensuring error-free integration over consultant models, was delivered within 20 days.

Key Deliverables

  • Shop Drawings
  • 3D Model
  • As-Built Details
Years of Experience

0 +

Years of Experience

Successful Projects

0 +

Successful Projects

Countries Served

0 +

Countries Served

Happy Clients

0 +

Happy Clients

Get in Touch

We execute multi-disciplinary BIM coordination and extract accurate shop drawings for seamless construction.

Zero-conflict MEP coordination...

— Precision BIM & drafting for the global AEC industry.

NDA Protected

Strict adherence to NDA protocols.

100% Confidential

We guarantee confidentiality of your data.

24-Hour Response

You'll hear back from our team within one business day.

Contact Us

Our Latest Blogs