Construction Documentation for a Residential Building
-
Project Type: Construction Documentation
-
Building Type: Residential Building
-
Country: USA
- Discover Our CD Set Projects
Project Details
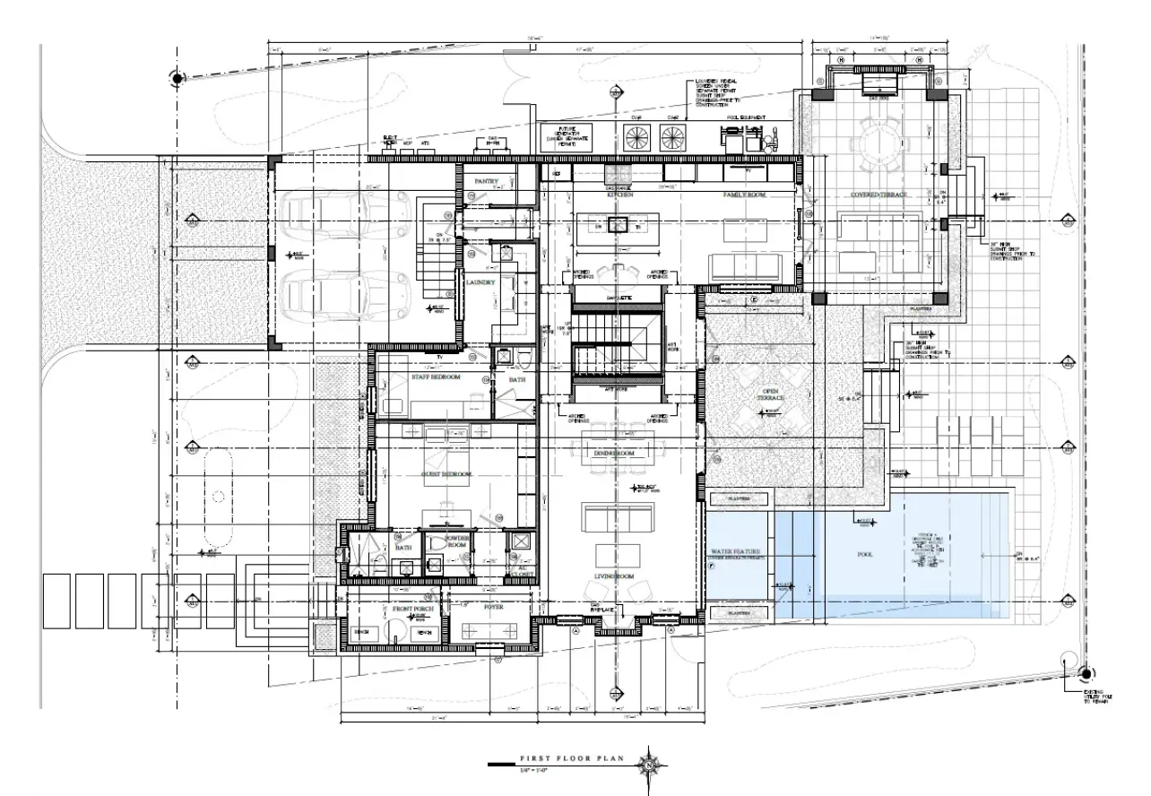
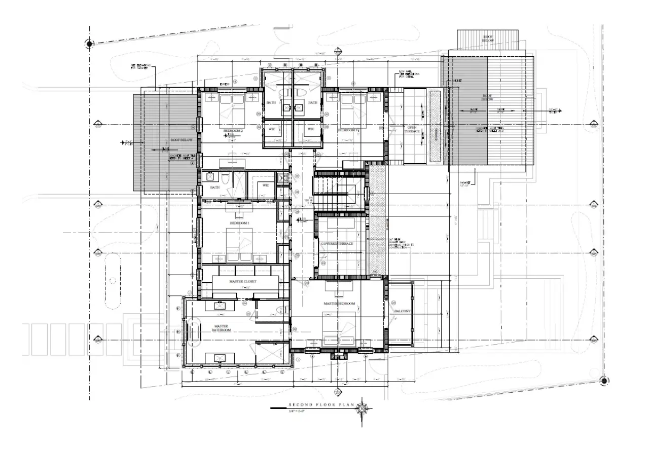
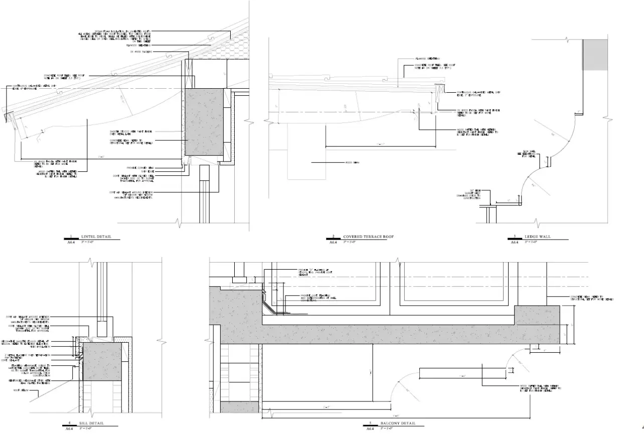
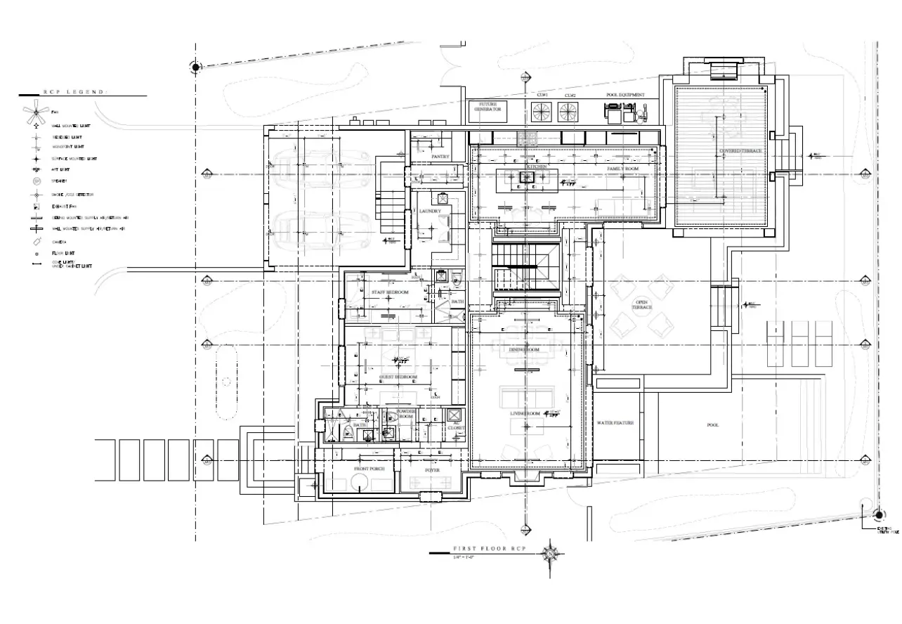
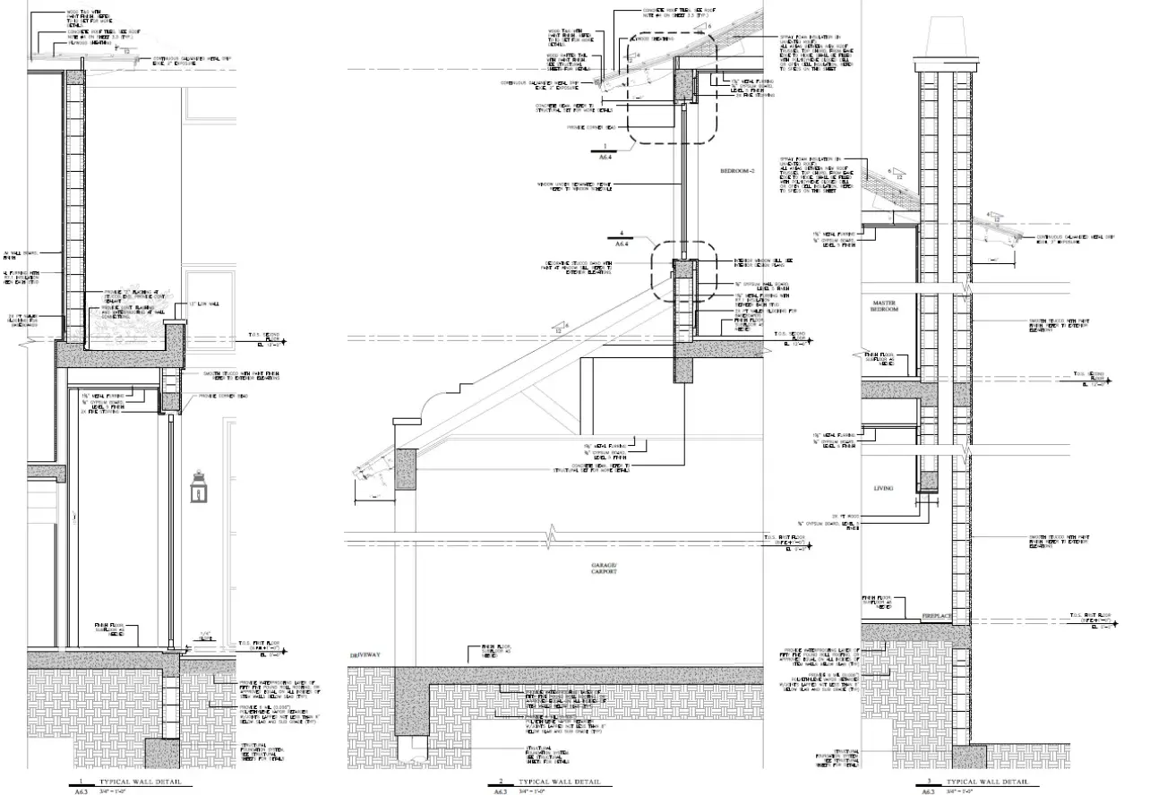
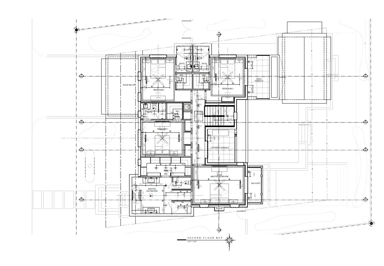
Delivered a comprehensive set of construction drawings for a residential building in Florida, USA, incorporating client design revisions and ensuring timely delivery. The project focused on producing accurate working drawings to meet all architectural requirements.
Key Deliverables
- Site plan
- Floor plans
- Elevations
- Sections
- Door and window schedules
- Construction details
0 +
Years of Experience
0 +
Successful Projects
0 +
Countries Served
0 +
Happy Clients
We provide full architectural construction documentation services for residential projects in Florida.
Scale your residential documentation...
— Precision BIM & drafting for the global AEC industry.
NDA Protected
Strict adherence to NDA protocols.
100% Confidential
We guarantee confidentiality of your data.
24-Hour Response
You'll hear back from our team within one business day.