Construction Drawings Set for a Church
-
Project Type: Construction Documentation
-
Building Type: Religious Building
-
Country: USA
- Check Out Our Construction Drawing Portfolio
Project Details
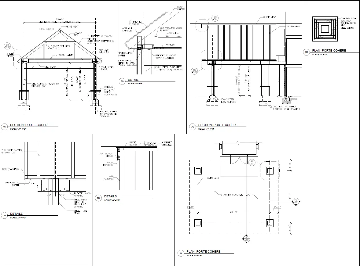
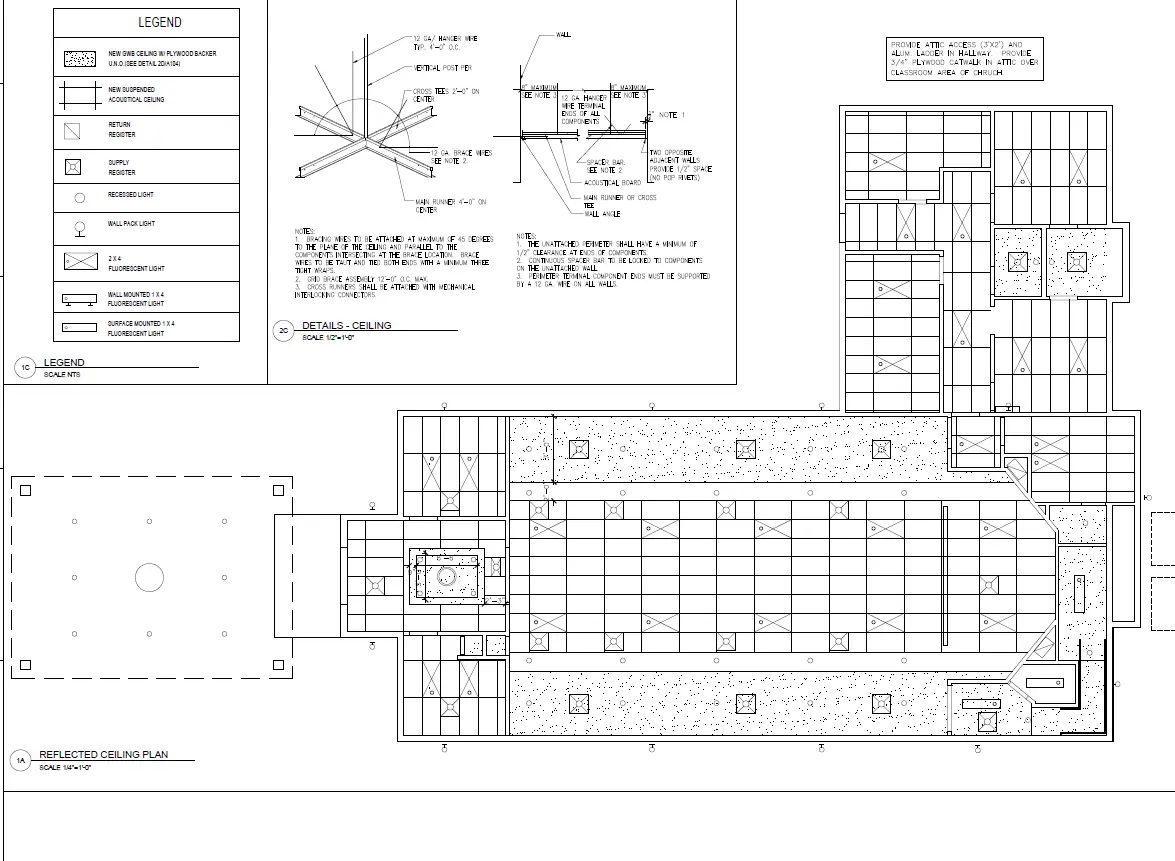
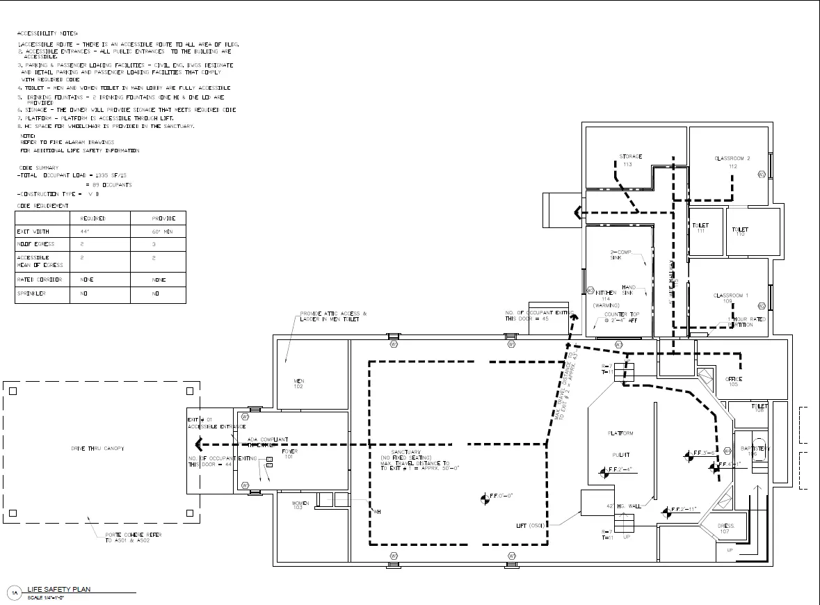
Tesla Outsourcing Services delivered a complete construction drawing set for the renovation of a church in the US, working with a renowned architectural firm. The project covered the sanctuary wing, classroom wing, warming kitchen, and storage, incorporating client-specified design modifications to existing architectural plans.
Key Deliverables
- Floor plans
- Elevations
- Sections
- Reflected ceiling plans
- Door and window schedules
- Construction details
0 +
Years of Experience
0 +
Successful Projects
0 +
Countries Served
0 +
Happy Clients
We produce detailed construction drawing sets for religious facility renovations and restorations in the USA.
Restore sacred spaces with accuracy...
— Precision BIM & drafting for the global AEC industry.
NDA Protected
Strict adherence to NDA protocols.
100% Confidential
We guarantee confidentiality of your data.
24-Hour Response
You'll hear back from our team within one business day.