Construction Drawing Set for a Residential Building
-
Project Type: Construction Documentation
-
Building Type: Residential Building
-
Country: USA
- See What Other Construction Drawing Sets We Delivered
Project Details
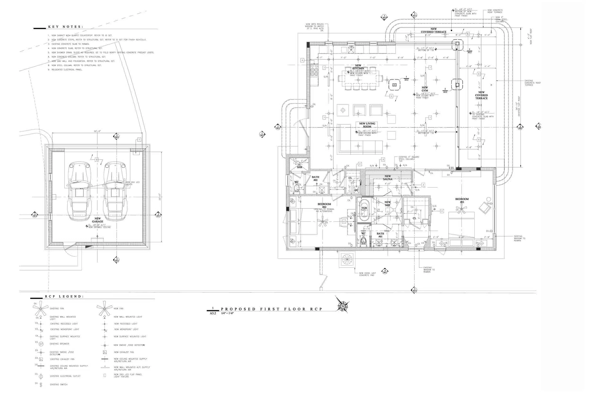
Produced a complete construction drawing set for a residential building in Florida, USA, using client-provided design drawings. The project focused on delivering accurate working drawings in both AutoCAD (.dwg) and PDF formats to support the construction process.
Key Deliverables
- Site plan
- Floor plans
- Elevations
- Sections
- Door and window schedules
- Construction details
0 +
Years of Experience
0 +
Successful Projects
0 +
Countries Served
0 +
Happy Clients
We create permit-ready construction drawing sets compliant with Florida building codes.
Florida-compliant residential sets...
— Precision BIM & drafting for the global AEC industry.
NDA Protected
Strict adherence to NDA protocols.
100% Confidential
We guarantee confidentiality of your data.
24-Hour Response
You'll hear back from our team within one business day.