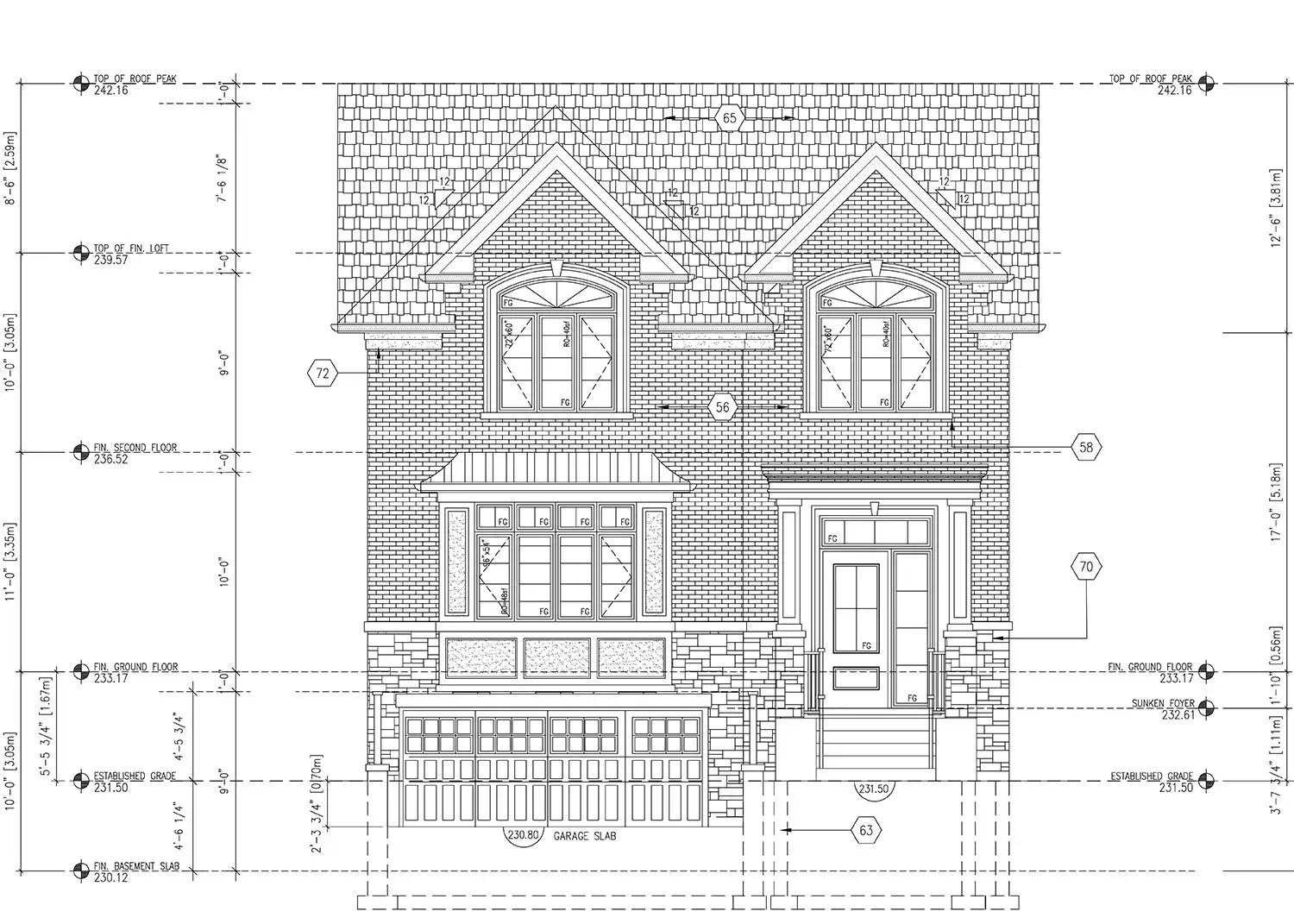
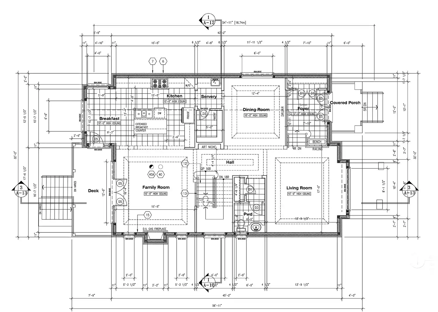
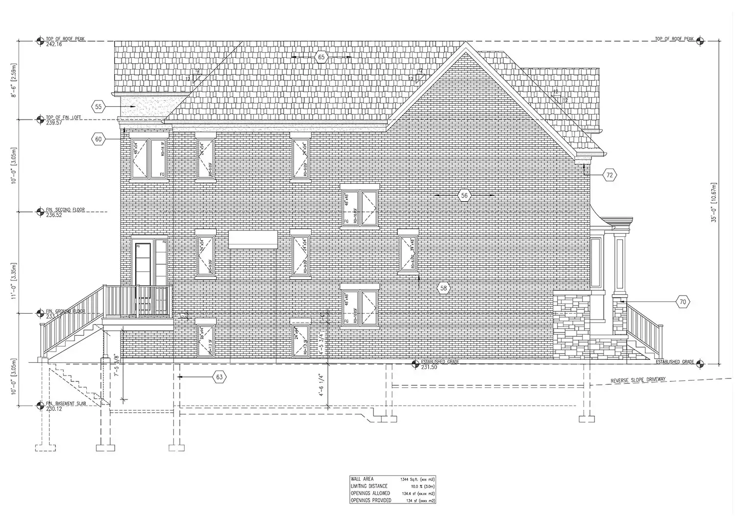
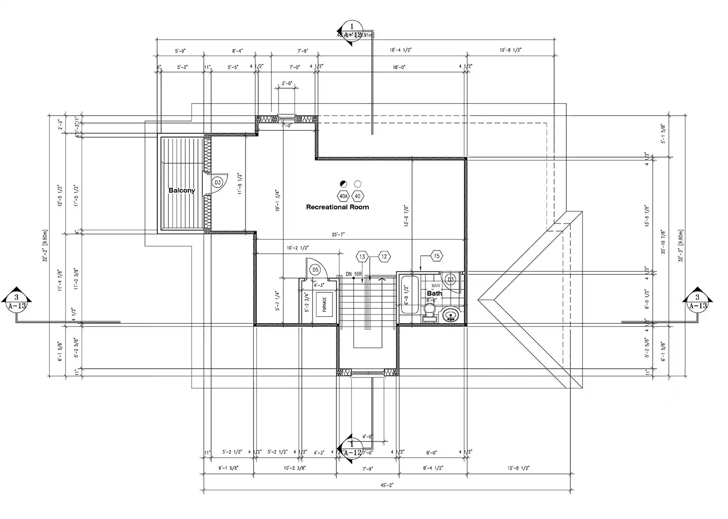
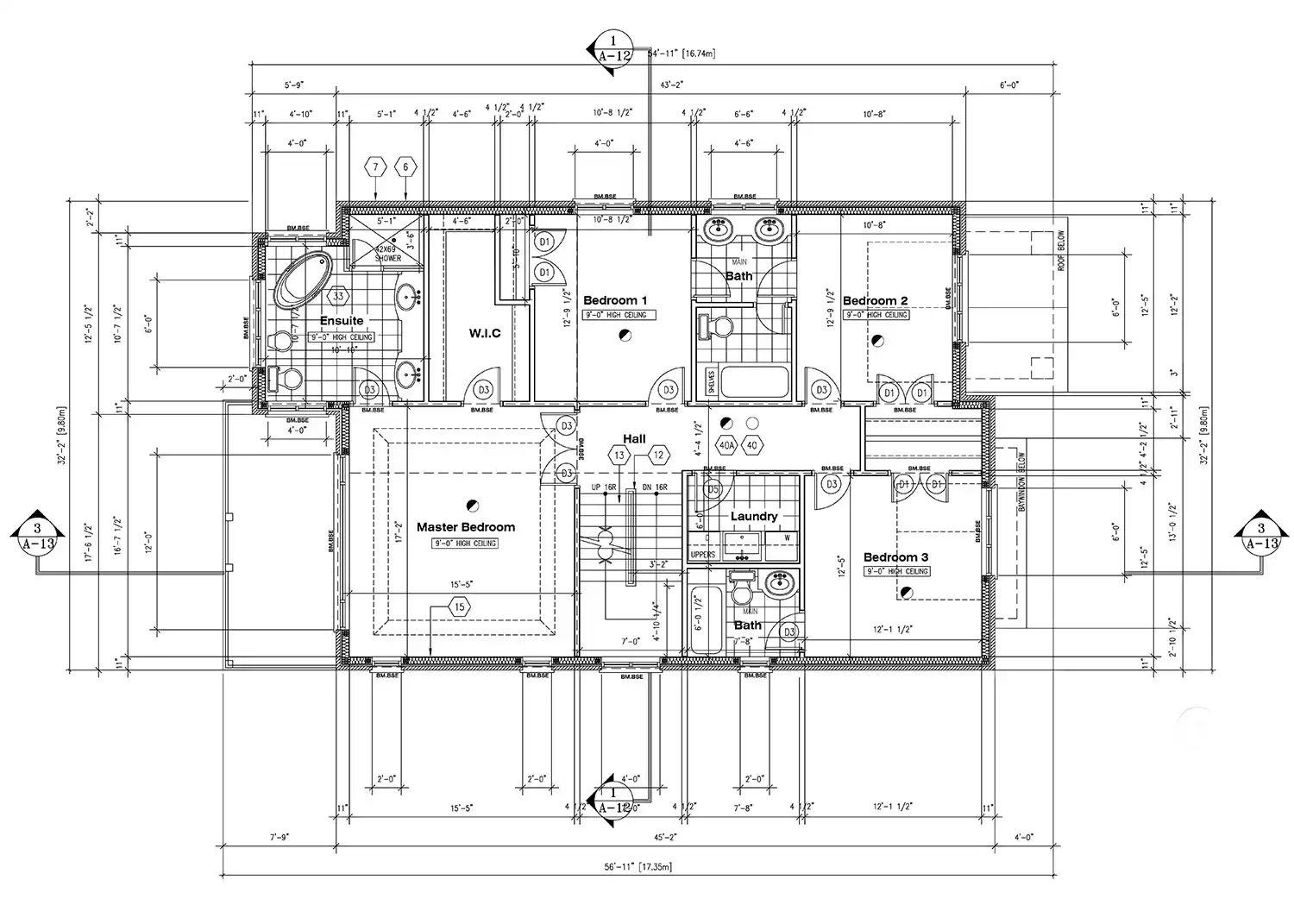
Construction Documentation for Residential Building
Osiris Drive
-
Project Type: Construction Documentation
-
Building Type: Residential
-
Country: Canada
- More Residential Construction Drawing Examples
0 +
Years of Experience
0 +
Successful Projects
0 +
Countries Served
0 +
Happy Clients
Get in Touch
We produce accurate construction documentation packages for custom residential building projects.
Reliable residential construction sets...
— Precision BIM & drafting for the global AEC industry.
NDA Protected
Strict adherence to NDA protocols.
100% Confidential
We guarantee confidentiality of your data.
24-Hour Response
You'll hear back from our team within one business day.
Note: Job applications via this form won’t be reviewed. Please see our Careers Page.