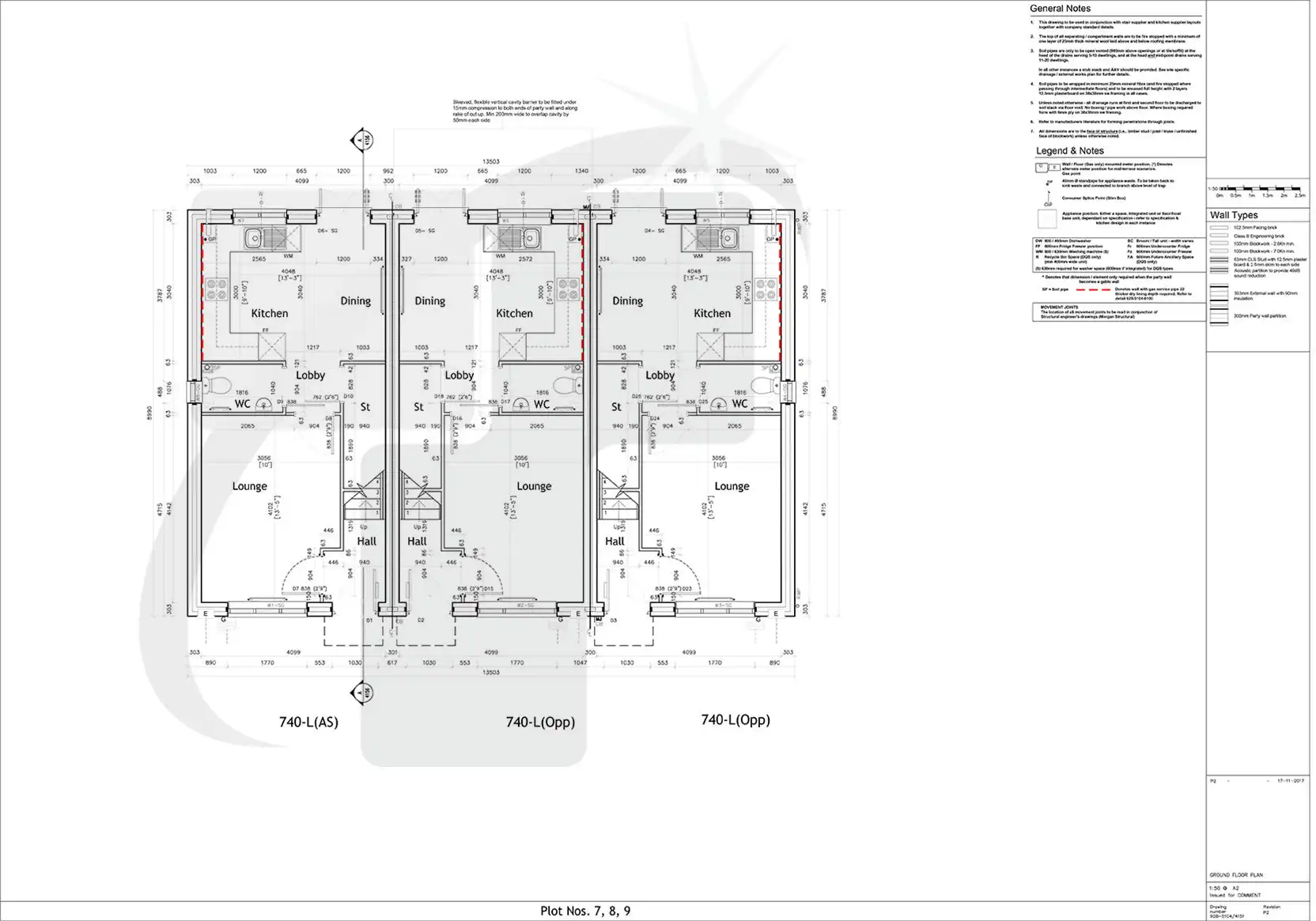
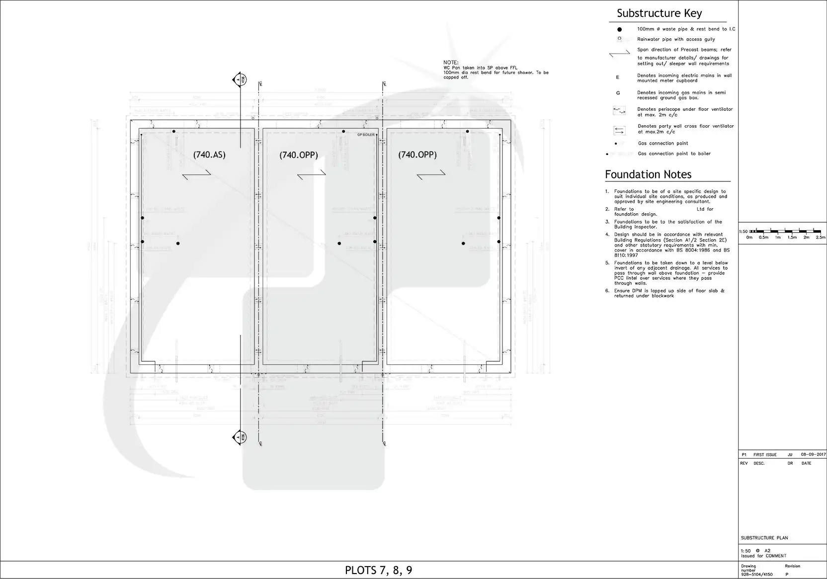
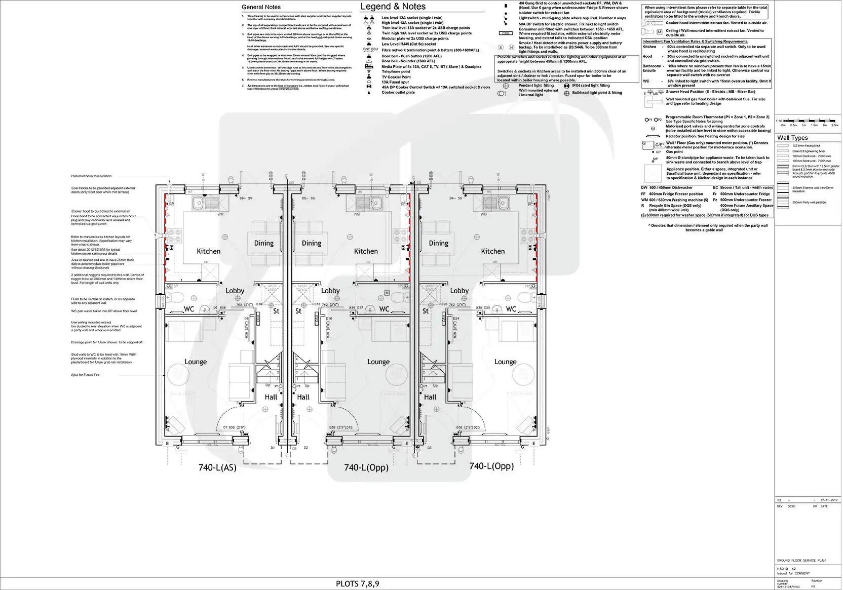
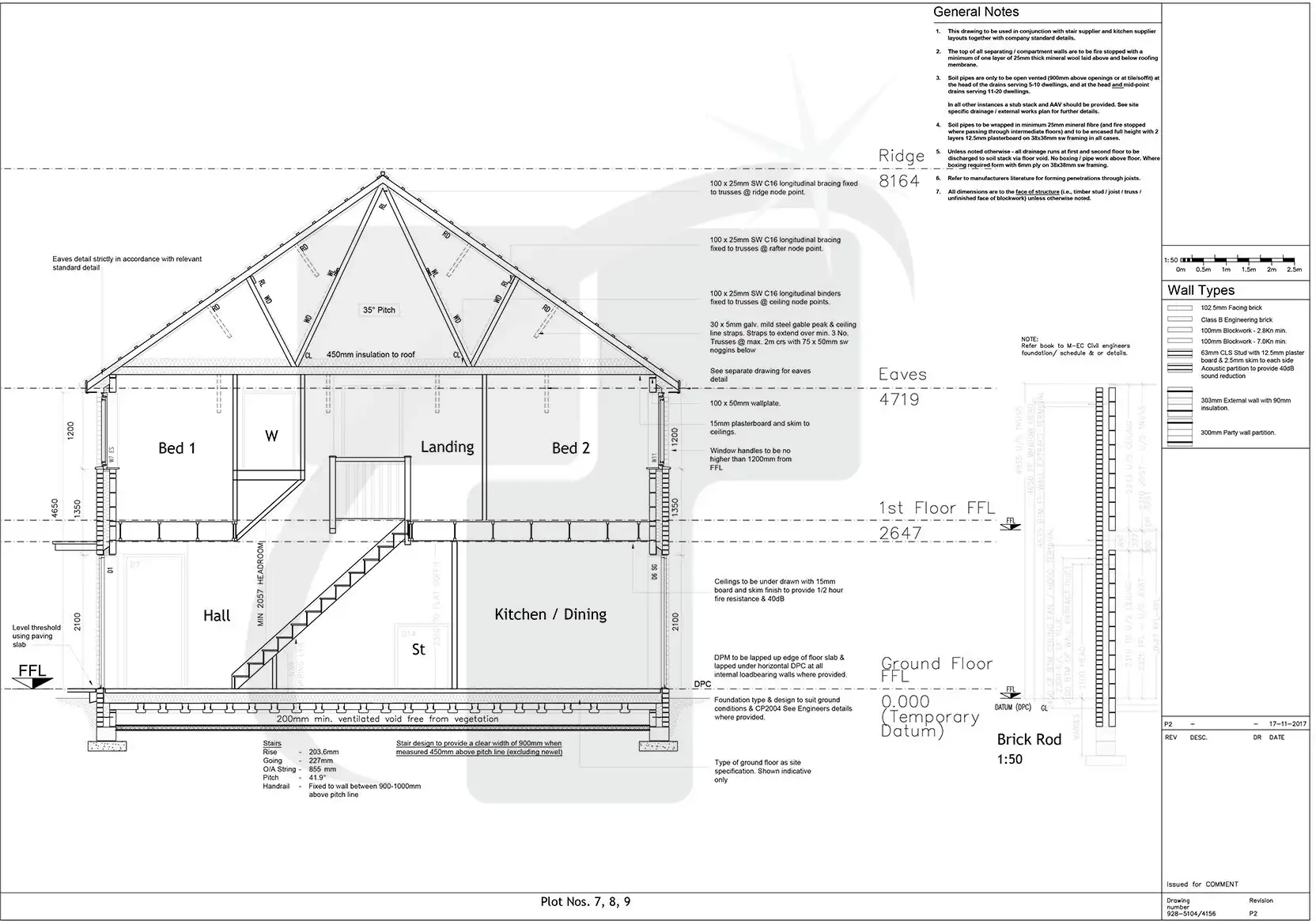
Construction Documentation for Residential Building
Willow Road
-
Project Type: Construction Documentation
-
Building Type: Residential
-
Country: UK
- See All Residential Construction Drawing Portfolio
0 +
Years of Experience
0 +
Successful Projects
0 +
Countries Served
0 +
Happy Clients
Get in Touch
We provide comprehensive residential construction documentation services to ensure error-free builds.
Error-free residential drafting...
— Precision BIM & drafting for the global AEC industry.
NDA Protected
Strict adherence to NDA protocols.
100% Confidential
We guarantee confidentiality of your data.
24-Hour Response
You'll hear back from our team within one business day.
Note: Job applications via this form won’t be reviewed. Please see our Careers Page.