Steel Shop Drawings for One Paseo Retail Building
-
Project Type: Steel Shop Drawings
-
Building Type: Commercial Building
-
Country: USA
- View Our Steel Shop Drawing Track Record
Project Details
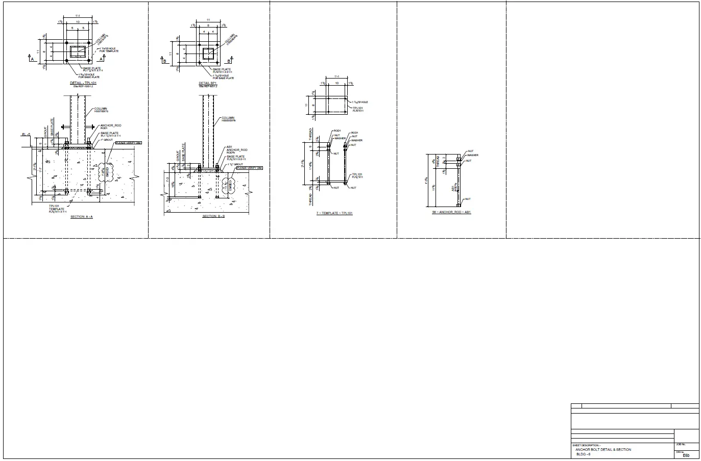
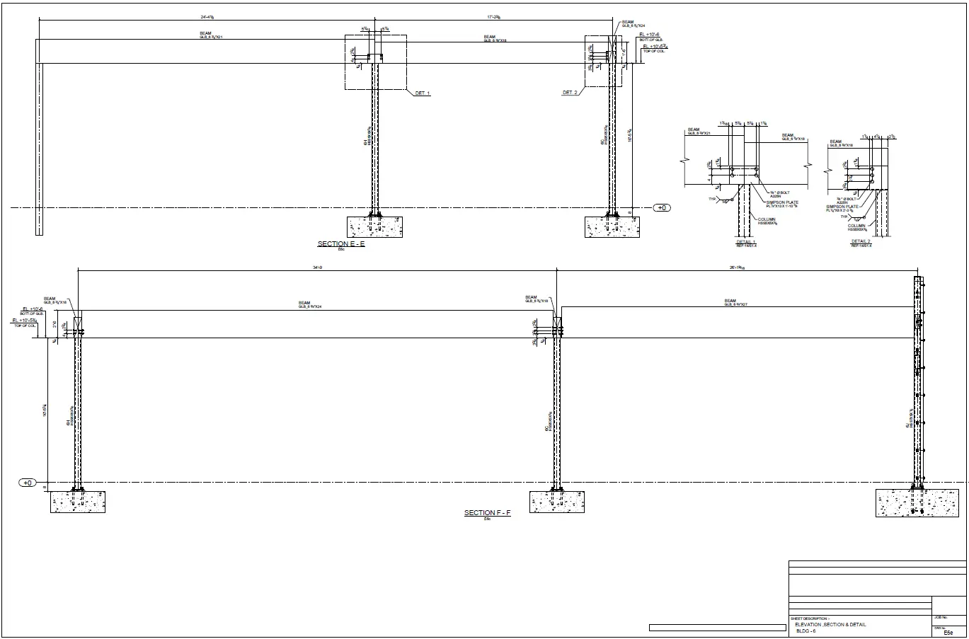
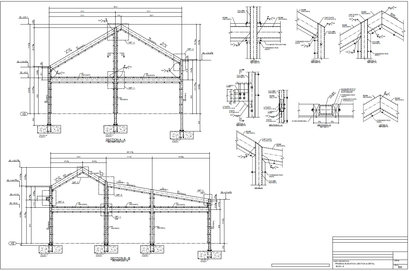
Tesla Outsourcing Services delivered shop and fabrication drawings for the One Paseo Retail Building in San Diego, USA, for a client with over 40 years of industry experience. The project was completed within 10 working days, earning additional assignments due to the quality and timely delivery.
Key Deliverables
- Structural steel shop drawings
- Fabrication drawings
- Drawings in PDF format
0 +
Years of Experience
0 +
Successful Projects
0 +
Countries Served
0 +
Happy Clients
We produce accurate structural steel shop and fabrication drawings for commercial retail buildings in the USA.
Fabrication-ready retail steel drawings...
— Precision BIM & drafting for the global AEC industry.
NDA Protected
Strict adherence to NDA protocols.
100% Confidential
We guarantee confidentiality of your data.
24-Hour Response
You'll hear back from our team within one business day.