Shop Drawings for metal cladding for Hotel Building
-
Project Type: Shop Drawings
-
Building Type: Hotel Building
-
Country: Canada
- See Metal Cladding and Shop Drawing Projects
Project Details
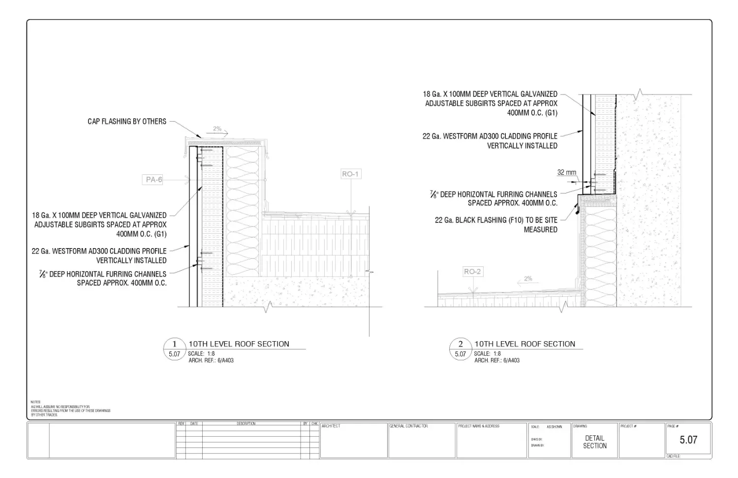
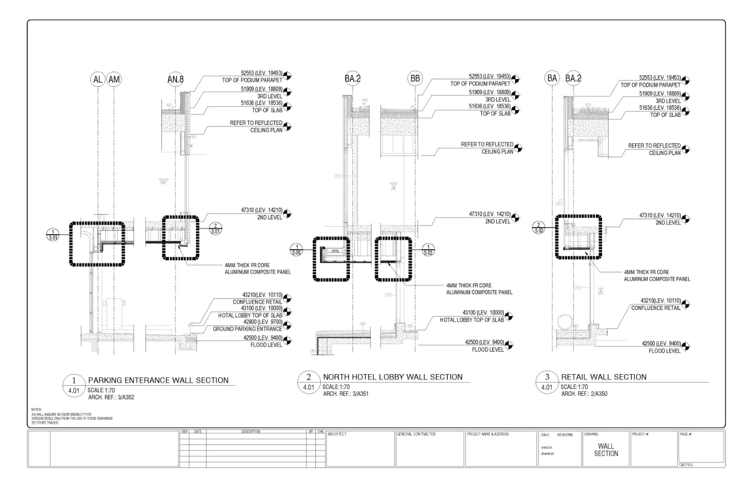
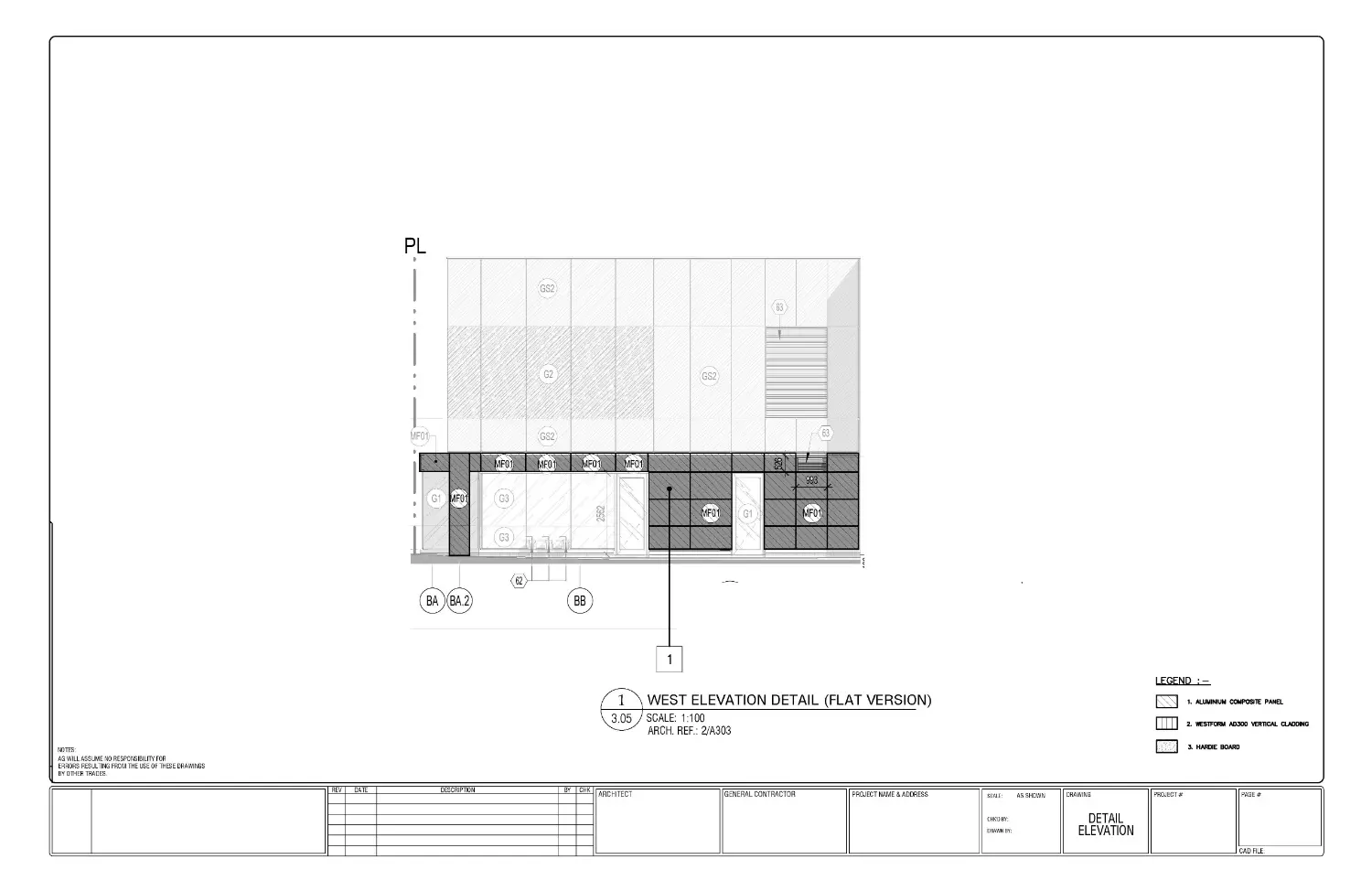
Tesla Outsourcing Services developed shop drawings for perforated metal cladding, aluminum composite panels, and metal louvres for a leading Canadian building envelope contractor. Working from client-supplied architectural PDFs and sample drawings, the team delivered precise shop drawings in AutoCAD and PDF formats, adhering to client standards.
Key Deliverables
- Shop drawings for metal cladding, composite panels, and louvres
- Compliance with client standards and sample drawings
- AutoCAD and PDF drawing formats
0 +
Years of Experience
0 +
Successful Projects
0 +
Countries Served
0 +
Happy Clients
We deliver detailed shop drawings for metal cladding and building envelope systems in Canada.
Precision detailing for building envelopes...
— Precision BIM & drafting for the global AEC industry.
NDA Protected
Strict adherence to NDA protocols.
100% Confidential
We guarantee confidentiality of your data.
24-Hour Response
You'll hear back from our team within one business day.