Structural Steel Detailing for an Industrial Building
-
Project Type: Steel Detailing
-
Building Type: Industrial Building
-
Country: USA
- Explore our Portfolio
Project Details
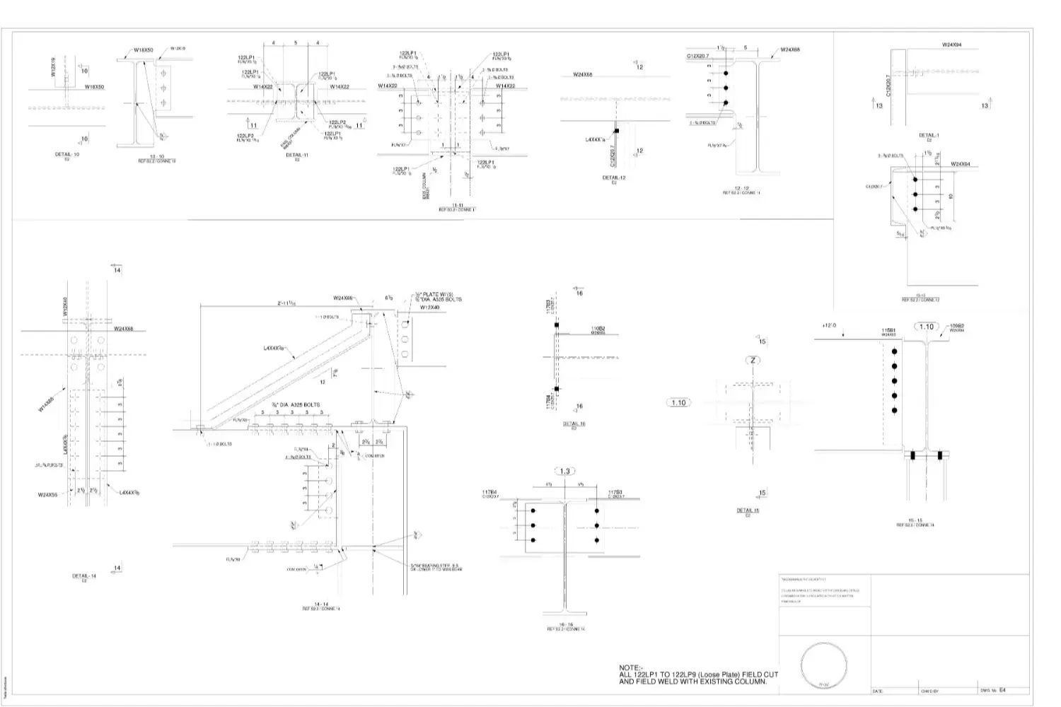
Tesla Outsourcing Services completed structural steel detailing for a leading Florida fabrication and erection company, covering two large-scale industrial plants. The project, delivered in 60 working days and totaling 6,000 man-hours, provided the client with a detailed 3D steel model, fabrication drawings, and take-offs for coordination and construction.
Key Deliverables
- Structural steel 3D model
- Erection layout
- General arrangement drawings
- Anchor bolt plan
- Quantity take-off
- Part and assembly drawings
- Fabtrol report
0 +
Years of Experience
0 +
Successful Projects
0 +
Countries Served
0 +
Happy Clients
We execute comprehensive structural steel detailing and 3D modeling for industrial plants in Florida.
Streamline industrial steel fabrication...
— Precision BIM & drafting for the global AEC industry.
NDA Protected
Strict adherence to NDA protocols.
100% Confidential
We guarantee confidentiality of your data.
24-Hour Response
You'll hear back from our team within one business day.