Architectural Design is not a job but it is a process that starts with conceptualization process and ends with a complete design drawing submission and 3D presentation model. This process usually starts when the client or owner brings his idea to an Architectural Company. The Architectural firm takes this concept and designs a structure with all appropriate by-laws, standards, and code to suit a particular geographical location or state/country. They have to adhere to the Federal and state bylaws diligently to ensure that the commissions approve of the construction design.
Today we will talk about two of phases that are included in the Architectural Design Process.
• Design Development
• Construction Drawings
Design and Development:
This is the second phase of the entire Design process. Primarily this process covers all aspects of the design much more in detail than the schematic design. The drawings in this stage need to be fully coordinated, covering every single detail that is required for construction. These drawing sets also include the following
• Interior Elevations
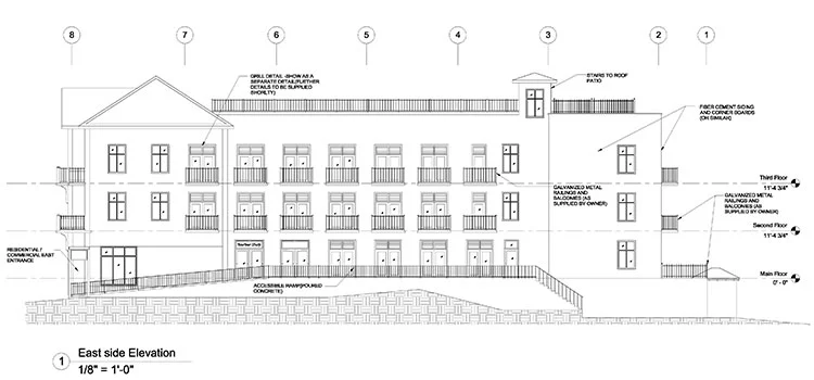
• Exterior Elevations
• Floor Plans
• Reflected Ceiling Plans
• Site Plans
• Wall Sections
• Detail Drawings for the toilet, foundation detail etc.
Drawings developed during the Design and Development stage is actually submitted for approval to the building department. These drawings become the foundation of the Architectural Construction Drawings that are developed at a later stage. The work in the DD stage is fairly split between Architects and Drafters. Architects are fairly responsible for providing the “Rough set” of Drawings to the Drafter who then takes these drawings and develops them into the “ Fair Set” of drawings with dimensioning, CAD and Layering Standards, Sheet Setups, section call outs etc.
Once the Architects or Engineers examine the work of the drafters, they approve the drawings and stamp them for further submissions. One aspect that needs to be kept in mind is that the Architect who works on the design and development stage has to ensure that the design is accurate and error free. Once the Architects reaches to a point where the designs are complete and approved, the next phase of design process i.e. Construction Drawings begins.
Construction Drawings
Construction Drawings is the most critical stage of the Architectural Design project. This is the third stage and is also known as “CD Set”. This phase takes care of all last minute and sudden design issues that come up in any project. The Architectural team works towards executing the design changes that arise during the development of CD Sets. Over budgeting of the current design, client not liking the designs, some issues which are a hurdle in obtaining the permissions etc. may compel the Architects to change the design. It is also possible that the design may change post submissions however Architects may need to add addendums in the CD Sets to reflect these changes.
Updating the Construction Drawings according to the Design changes is very important. Even the Visualizers need to reflect these changes while designing the 3D Models and renderings. Incorrect line work, dimensioning etc. in the CD set can result in erroneous 3D modeling.
Our goal was to give some insight on multiple stages of Architectural Design process with the help of this article. To know more about Architectural Construction Drawing services click on this link below.
